Negozio a Trastevere - Piazza in Piscinula AFFITTO

Piazza in Piscinula 51 - Roma, Zona Trastevere
€ 6.000 mensili
  • 1 locale
  • 106 mq
  • 1 bagno

Negozio in Affitto a Roma

IN TRATTATIVA.
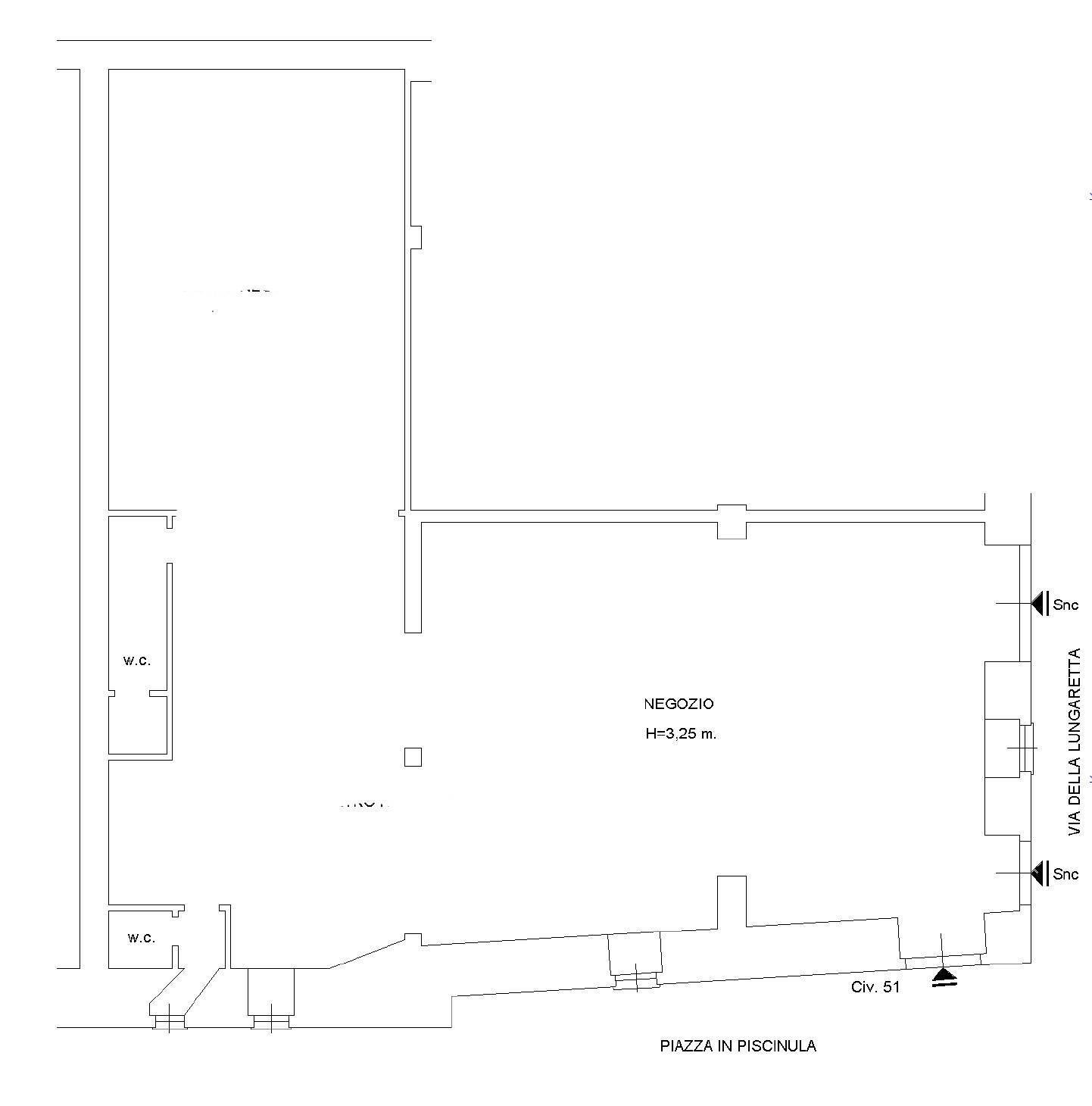
Affittiamo negozio C/1 in Piazza in Piscinula angolo via della Lungaretta con doppia entrata. Il locale misura 106 mq catastali e necessita di ristrutturazione a cura dell'inquilino. No canna fumaria. Non disponiamo di licenza, si locano le mura dell'immobile. Contratto commerciale 6+6. Richiesta fideiussione bancaria. Spese condominiali 50 euro al mese. Disponibile da marzo. Per informazioni e visite chiamare 3483832596 Alessandro Vitale agente immobiliare con iscrizione alla Camera di Commercio di Grosseto.

CONDIVIDI SUI SOCIAL

DATI PRINCIPALI

Riferimento
629877
Contratto
Affitto
Tipologia
Immobile - Negozio
Superficie
106 mq
Locali
1
Bagni
1
Piano
Piano terra
Totale piani
2

CARATTERISTICHE

Ascensore

COSTI

Canone
Affitto € 6.000,00 al mese
Tipo locazione
4+4
Spese condominiali
€ 50,00 / mese, non incluse nel canone

EFFICIENZA ENERGETICA

Stato
Da ristrutturare
Anno costruzione
1700

MAPPA