Monte Mario Locale Laboratorio con area parcheggio VENDITA

Via Raffaele Lambruschini - Roma (Roma)
€ 99.000
  • 3 locali
  • 110 mq
  • 1 bagno

Negozio in Vendita a Roma

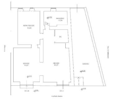
MONTE MARIO – LOCALE LABORATORIO - C3
Monte Mario La Frimm Immobiliare propone in vendita precisamente in Via Raffaele Lambruschini un locale laboratorio posto al piano terra di 109 mq oltre area urbana adibita a parcheggio di proprietà con accesso carrabile, sviluppato su un unico livello composto da tre ampi ambienti con cinque vetrine e servizio igienico Per ulteriori informazioni o prenotare una visita contattare lo 0697842632 o 3395692925 oppure inviare una mail a frimm820@frimm.com

CONDIVIDI SUI SOCIAL

DATI PRINCIPALI

Riferimento
611299
Contratto
Vendita
Tipologia
Immobile - Negozio
Superficie
110 mq
Locali
3
Bagni
1
Piano
Piano terra
Totale piani
3
Box/Posto auto
Doppio

CARATTERISTICHE

Ascensore

COSTI

Prezzo
€ 99.000,00
Spese condominiali
€ 1,00 / mese

EFFICIENZA ENERGETICA

Stato
Da ristrutturare
Anno costruzione
1968
Classe energetica
G
IPE
351,00 kWh/m²a

A+

A

B

C

D

E

F

351,00 kWh/m²a | Classe energetica G

G

MAPPA

ANNUNCI SIMILI

VENDITA 3
€ 1.450.000
Negozio in Vendita a Roma (Roma)
  • Più di 5 locali
  • 300 mq
  • 3 bagni