LOCAZIONE – SPAZIO COMMERCIALE AMPIE VETRINE VIA NAZIONALE AFFITTO

Via Nazionale 198 - Roma (Roma)
€ 25.000 mensili
  • 1 locale
  • 416 mq

Negozio in Affitto a Roma

Maxire propone in locazione, con mandato in esclusiva, un prestigioso locale commerciale situato su Via Nazionale, una delle arterie più importanti e riconoscibili di Roma, che collega Piazza della Repubblica e la Stazione Termini a Piazza Venezia.

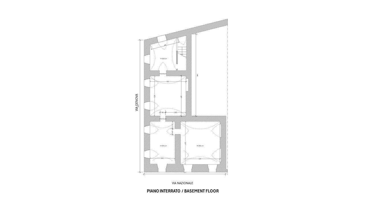
La superficie commerciale si sviluppa su:
- 154 mq Piano Terra
- 116 mq Piano Soppalco (di cui 84 mq area vendita + 32 mq magazzino)
- 146 mq Piano Interrato

L’immobile viene proposto in locazione con una richiesta di € 300.000 annui e si colloca in un contesto retail premium, circondato da insegne quali Dan John, Elena Mirò, Mango, Camicissima, Legami, Yamamay e molte altre.
Il locale gode di un’elevatissima visibilità grazie al costante flusso pedonale e veicolare. La posizione è ottimamente servita dai mezzi pubblici: la fermata della metropolitana Repubblica (Linea A) si trova a pochi passi, così come numerose linee di autobus che garantiscono collegamenti rapidi con il centro storico e con la Stazione Termini. Nelle immediate vicinanze sono presenti inoltre importanti punti di interesse culturale, tra cui la Chiesa di San Paolo dentro le Mura e il Palazzo delle Esposizioni.

Per ulteriori informazioni e per fissare una visita, contattateci al numero di telefono 02/49710783 o via email all'indirizzo immobiliaremilano@maxire.com.
Maxire detiene un mandato in esclusiva per la commercializzazione dello spazio.

LEGGI TUTTO

CONDIVIDI SUI SOCIAL

DATI PRINCIPALI

Riferimento
638291
Contratto
Affitto
Tipologia
Immobile - Negozio
Superficie
416 mq
Locali
1
Totale piani
4

CARATTERISTICHE

Ascensore

COSTI

Canone
Affitto € 25.000,00 al mese
Tipo locazione
4+4

EFFICIENZA ENERGETICA

Stato
Abitabile
Classe energetica
G
IPE
175,00 kWh/m²a

A+

A

B

C

D

E

F

175,00 kWh/m²a | Classe energetica G

G

MAPPA