LOCALI COMMERCIALI PARCO 51 - VIA PONTINA 520mq (max 1400mq) AFFITTO

Via Pontina - Pomezia (Roma)
Trattativa Riservata
  • 1 locale
  • 521 mq
  • 2 bagni

Negozio in Affitto a Pomezia

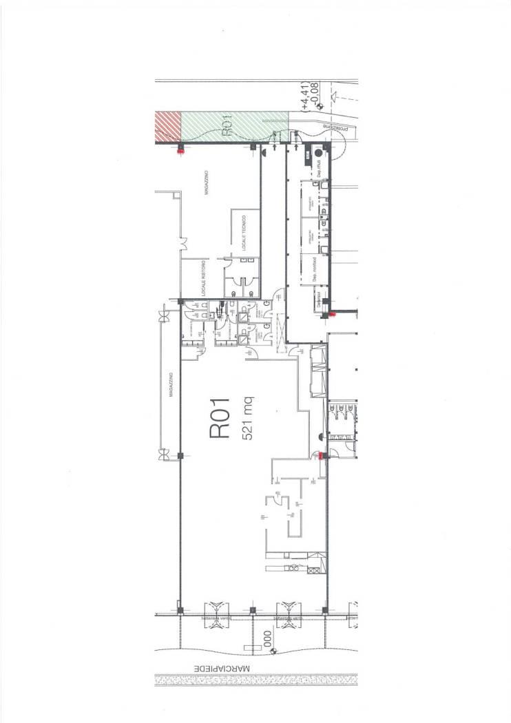
Proponiamo in locazione all’interno del rinomato polo commerciale Parco 51, un ampio spazio commerciale di circa 520 mq, ideale per attività retail, showroom o servizi al pubblico. L’immobile si distingue per la posizione strategica su Via Pontina, arteria ad altissimo traffico tra Roma e Latina, e per la grande visibilità sia pedonale che veicolare.

La struttura, in ottime condizioni e pronta all’uso, è completamente personalizzabile per adattarsi alle esigenze del tuo business.

Disponibili anche tagli modulari da 520 mq a 1.400 mq, tutti su un unico livello.

Caratteristiche principali:
• Superficie calpestabile: 521 mq
• Altezza interna: 5,00 m
• Accesso diretto fronte strada: carrabile e pedonale
• Layout open space con possibilità di suddivisione interna
• Zona magazzino e locali tecnici
• Doppi servizi igienici
• Struttura moderna e funzionale, pronta all’uso

Punti di forza:
• Location strategica: accesso diretto da Via Pontina, facilmente raggiungibile da Roma e Latina
• Alta visibilità: fronte strada con forte passaggio veicolare e pedonale
• Contesto commerciale consolidato: inserito nel Parco 51 (20.000 mq), con brand nazionali come Iperdem, Toys Center, Trony, Pepco, Kiabi, Happy Casa e altri
• Servizi per i clienti: parcheggio coperto, Wi-Fi gratuito, area ristoro, nursery, colonnine di ricarica elettrica, area giochi per bambini
• Immediata disponibilità
• Ambiente pet-friendly

IMMOBILI INDUSTRIALI - COMMERCIALI - ARTIGIANALI

Non affidarti al caso,
AFFIDATI AI NOSTRI PROFESSIONISTI

La nostra specializzazione e la nostra pluriennale esperienza sono a tua disposizione.

Affiliato: SERVIZI DI IMPRESA SRL

Via del Mare, 33 - POMEZIA (RM)
T. 06 9120800 M. 392 9120800 WhatsApp 392 9120800

rmhff@tecnocasa.it

LEGGI TUTTO

CONDIVIDI SUI SOCIAL

DATI PRINCIPALI

Riferimento
642949
Contratto
Affitto
Tipologia
Immobile - Negozio
Superficie
521 mq
Locali
1
Bagni
2
Piano
Piano terra
Totale piani
1
Box/Posto auto
Doppio

CARATTERISTICHE

Ascensore Allarme

COSTI

Canone
Trattativa Riservata
Tipo locazione
4+4
Spese condominiali
€ 2.085,00 / mese, non incluse nel canone

EFFICIENZA ENERGETICA

Stato
Abitabile
Anno costruzione
2021
Riscaldamento
Autonomo
Climatizzazione
Si
Classe energetica
F
IPE
235,00 kWh/m²a

A+

A

B

C

D

E

235,00 kWh/m²a | Classe energetica F

F

G

MAPPA

ANNUNCI SIMILI