Locale zona Trionfale Gemelli AFFITTO

Via Giuseppe Taverna 14 - Roma (Roma)
€ 1.800 mensili
  • 2 locali
  • 250 mq
  • 1 bagno

Negozio in Affitto a Roma

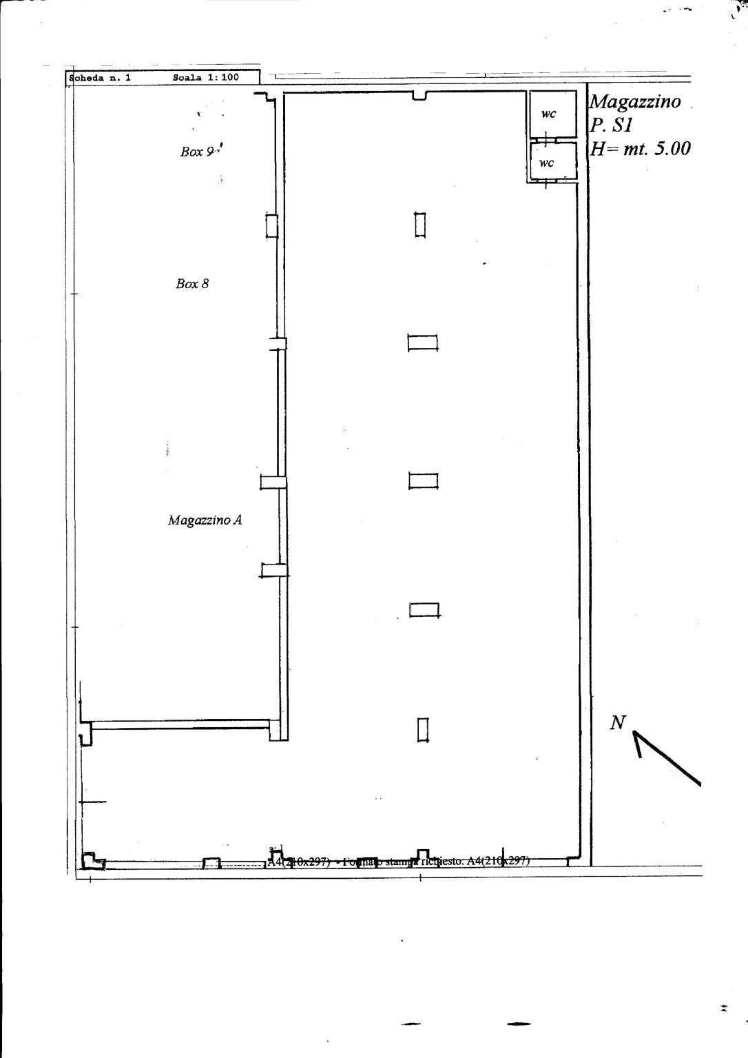
Anelli Group Real Estate propone la locazione di un interessante locale di circa 250 mq commerciali dotato di ampio accesso. Punti di forza sono la facilità di accesso, l'altezza dei soffiti pari a 5 metri, la buona luminosità. Il quartiere è ben servito ed a pochi minuti a piedi troviamo l'importante polo Ospedaliero del Gemelli ed la facoltà di medicina della Cattolica. Si presta a diverse interpretazioni e si valuta la possibilità di cambio di destinazione.

CONDIVIDI SUI SOCIAL

DATI PRINCIPALI

Riferimento
636479
Contratto
Affitto
Tipologia
Immobile - Negozio
Superficie
250 mq
Locali
2
Bagni
1
Piano
Piano terra
Totale piani
1
Box/Posto auto
Doppio

CARATTERISTICHE

Ascensore

COSTI

Canone
Affitto € 1.800,00 al mese
Tipo locazione
4+4
Spese condominiali
€ 50,00 / mese, non incluse nel canone

EFFICIENZA ENERGETICA

Stato
Da ristrutturare
Classe energetica
G
IPE
175,00 kWh/m²a

A+

A

B

C

D

E

F

175,00 kWh/m²a | Classe energetica G

G

MAPPA

ANNUNCI SIMILI