LOCALE COMMERCIALE VIA DOMENICO COMPARETTI VENDITA

Via Domenico Comparetti - Roma (Roma)
€ 329.000
  • Più di 5 locali
  • 339 mq
  • 2 bagni

Negozio in Vendita a Roma

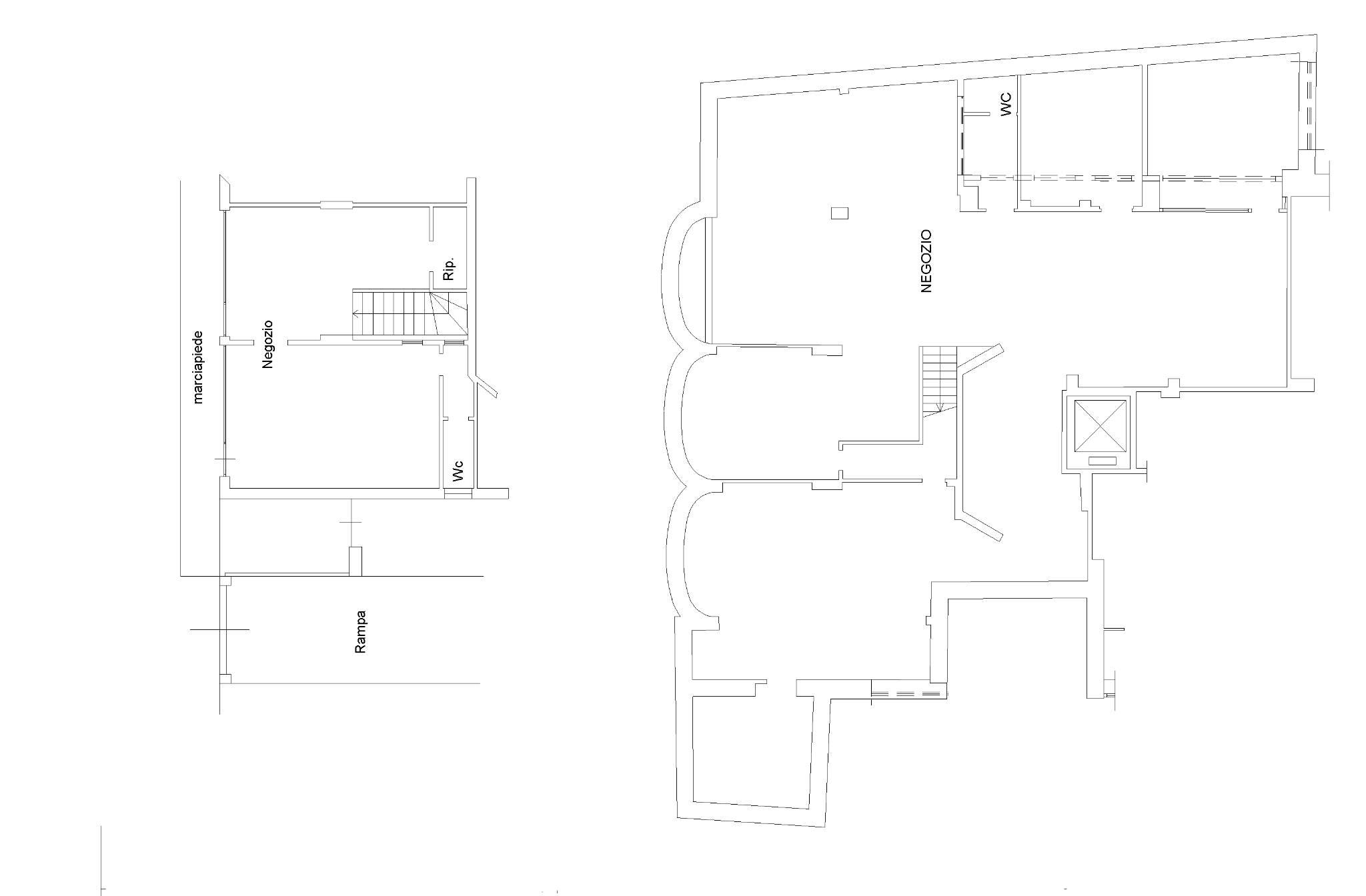
Nelle immediate adiacenze di Via Ugo Ojetti e Via Nomentana, in uno stabile di piani 4, proponiamo la vendita di un interessante locale commerciale bilivello di categoria catastale C1, costituito da due negozi su strada, con due vetrine, un bagno, una serranda manuale ed una elettrica e da un locale commerciale posto al piano S1, composto da diversi vani; i locali sono comunicanti tra loro tramite una comoda scala interna.
Lo stato degli stessi, come da foto, si presenta in condizioni ottimali, i locali sono forniti, inoltre, di impianto di allarme, di videosorveglianza e di un climatizzatore.
In particolare, il locale posto al piano interrato è dotato di elegante controsoffitto, impianto di immissione aria, caldaia e termosifone. L’immobile, sia per la metratura, di circa 339 m² catastali, che per l’ubicazione, risulta adatto a molteplici tipologie di attività commerciali e per uso investimento.
Classe energetica: G (101.48 kWh/m² anno). Le presenti informazioni non costituiscono elemento contrattuale.

Mission: fornire una gamma completa di servizi Real Estate accompagnando famiglie e imprese durante l’intero percorso di acquisto, vendita o locazione Immobiliare e garantendo professionalità e trasparenza al fine di creare valore aggiunto e ottenere un’esperienza positiva di successo. Le presenti informazioni non costituiscono elemento contrattuale.

LEGGI TUTTO

CONDIVIDI SUI SOCIAL

DATI PRINCIPALI

Riferimento
630739
Contratto
Vendita
Tipologia
Immobile - Negozio
Superficie
339 mq
Locali
Più di 5
Bagni
2
Piano
Piano terra
Totale piani
4

CARATTERISTICHE

Ascensore Allarme

COSTI

Prezzo
€ 329.000,00
Spese condominiali
€ 70,00 / mese

EFFICIENZA ENERGETICA

Stato
Abitabile
Anno costruzione
1958
Riscaldamento
Autonomo
Climatizzazione
Si
Classe energetica
G
IPE
175,00 kWh/m²a

A+

A

B

C

D

E

F

175,00 kWh/m²a | Classe energetica G

G

MAPPA

ANNUNCI SIMILI

VENDITA 17
€ 830.000
Negozio in Vendita a Roma, Zona Città Giardino
  • Più di 5 locali
  • 450 mq
  • 4 bagni
VENDITA 13
€ 850.000
Negozio in Vendita a Roma (Roma)
  • Più di 5 locali
  • 350 mq
  • 4 bagni
VENDITA 19
€ 120.000
Negozio in Vendita a Roma (Roma)
  • Più di 5 locali
  • 108 mq
  • 2 bagni
VENDITA 12
€ 349.000
Negozio in Vendita a Roma, Zona Bologna
  • Più di 5 locali
  • 255 mq
  • 4 bagni