Locale commerciale in Affitto AFFITTO

Via 4 Novembre - Fonte Nuova (Roma)
€ 950 mensili
  • 1 locale
  • 75 mq
  • 1 bagno

Negozio in Affitto a Fonte Nuova

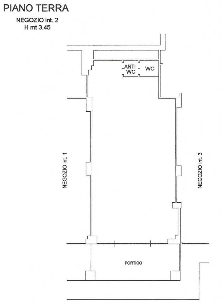
Fonte Nuova ( Tor lupara ) - Su Via IV Novembre ( in zona mercato ) Proponiamo in Locazione un locale commerciale ( Cat. Catastale C1 ) di mq. 75 circa posto al terra - PREZZO TRATTABILE - Cod. 290 - Per ulteriori informazioni rivolgersi a Immobiliare Grasselli (Via Nomentana, 547 - Tor Lupara) TX. 06/87602209 e Cell./whatsapp 379/1371544.

CONDIVIDI SUI SOCIAL

DATI PRINCIPALI

Riferimento
643980
Contratto
Affitto
Tipologia
Immobile - Negozio
Superficie
75 mq
Locali
1
Bagni
1
Piano
Piano terra
Totale piani
3

CARATTERISTICHE

Ascensore

COSTI

Canone
Affitto € 950,00 al mese
Tipo locazione
4+4

EFFICIENZA ENERGETICA

Stato
Abitabile
Anno costruzione
1990
Classe energetica
F
IPE
351,00 kWh/m²a

A+

A

B

C

D

E

351,00 kWh/m²a | Classe energetica F

F

G

MAPPA