Locale commerciale in Affitto AFFITTO

Viale Ungheria 17 - Palombara Sabina (Roma)
€ 600 mensili
  • 1 locale
  • 37 mq
  • 1 bagno

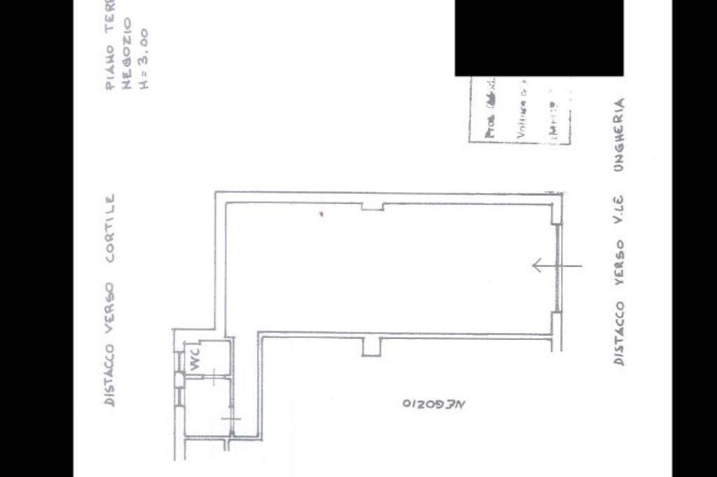
Negozio in Affitto a Palombara Sabina

Palombara Sabina, proponiamo in locazione locale commerciale C/1 con vetrina espositiva fronte strada.
L’immobile ha una superficie totale calpestabile di 37 mq , sviluppati su un unico livello. Il locale luminoso e dalla posizione invidiabile è composto da: ampia sala con vetrina espositiva fronte strada, piccolo corridoio, antibagno e bagno con finestra.
Lo stato interno dell’immobile è buono, il locale infatti viene locato con tutti i servizi principali, quali impianto telefonico, elettrico, idrico con acqua diretta e fogna comunale mentre l’impianto termico è fornito tramite climatizzazione.
L’immobile inoltre gode di comodo accesso indipendente al piano terra, facilmente raggiungibile in automobile con possibilità di parcheggio antistante ed è esente da spese condominiali. Gli infissi interni sono in doppio vetro/alluminio, le porte interne invece sono in legno mentre i pavimenti sono in gres.
Uno degli aspetti positivi di questa proprietà è senza dubbio la luminosità data dalla vetrina espositiva che ha affaccio diretto su Viale Ungheria, una delle vie principali di Palombara Sabina. Si distingue poi anche per la sua posizione strategica sulla strada.
Il locale commerciale è adatto a qualsiasi tipo di attività di vendita e rivendita.
Il paese di Palombara è un centro costituito da 13.000 abitanti, dove possiamo trovare sia le principali attività commerciali, che gli uffici pubblici. Ben collegato con la capitale sia con il treno che con la Via Salaria. Se hai il progetto di investire, cosa aspetti a farlo?
Palombara ha tutti i requisiti che stai cercando.
Classe energetica E IPE: 121.57 kwh/mq anno.

LEGGI TUTTO

CONDIVIDI SUI SOCIAL

DATI PRINCIPALI

Riferimento
640461
Contratto
Affitto
Tipologia
Immobile - Negozio
Superficie
37 mq
Locali
1
Bagni
1
Piano
Piano rialzato
Totale piani
4

CARATTERISTICHE

Ascensore

COSTI

Canone
Affitto € 600,00 al mese
Tipo locazione
4+4

EFFICIENZA ENERGETICA

Stato
Abitabile
Anno costruzione
1975
Riscaldamento
Autonomo
Climatizzazione
Si
Classe energetica
G
IPE
121,57 kWh/m²a

A+

A

B

C

D

E

F

121,57 kWh/m²a | Classe energetica G

G

MAPPA

ANNUNCI SIMILI