LOCALE COMMERCIALE IN AFFITTO AFFITTO

Via Cancelliera 67 - Ariccia (Roma)
€ 3.500 mensili
  • 2 locali
  • 330 mq
  • 2 bagni

Negozio in Affitto a Ariccia

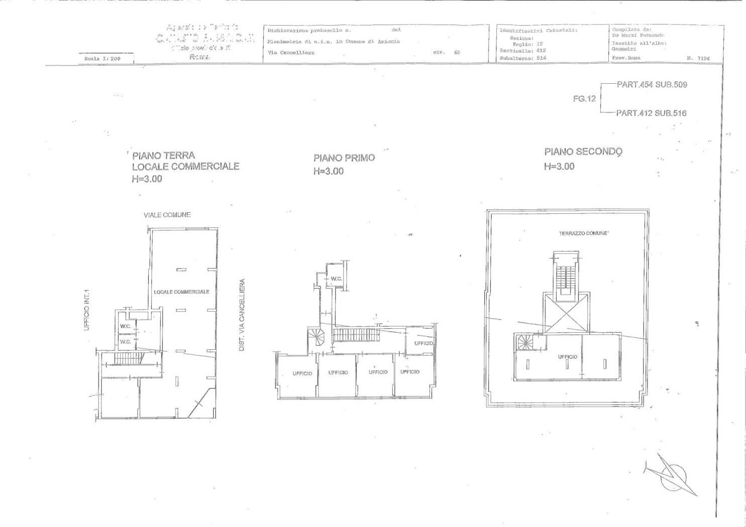
Ariccia Zona industriale/commerciale esattamente su via di Cancelliera, affittasi locale commerciale con fronte strada provvisto di vetrine, per un totale di mq 330 su due livelli piano terra e primo, collegati da un'ampia scala, ampio parcheggio. Libero da Novembre.
Per maggiori informazioni contattare i seguenti numeri di telefono.06/89119157-347/2944041

CONDIVIDI SUI SOCIAL

DATI PRINCIPALI

Riferimento
638533
Contratto
Affitto
Tipologia
Immobile - Negozio
Superficie
330 mq
Locali
2
Bagni
2
Piano
Piano terra
Totale piani
2
Box/Posto auto
Doppio

CARATTERISTICHE

Ascensore

COSTI

Canone
Affitto € 3.500,00 al mese
Tipo locazione
4+4

EFFICIENZA ENERGETICA

Stato
Abitabile

MAPPA

ANNUNCI SIMILI

AFFITTO 4
€ 3.200 mensili
Negozio in Affitto a Ariccia (Roma)
  • 3 locali
  • 350 mq
  • 3 bagni