Locale commerciale in Affitto AFFITTO

Via Filippo Pizzicannella 50 - Genzano di Roma (Roma)
€ 2.000 mensili
  • 2 locali
  • 179 mq
  • 1 bagno

Negozio in Affitto a Genzano di Roma

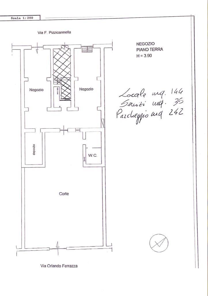
A ridosso di Corso Gramsci, con ingresso da Via Pizzicannella e da Via Ferrazza locale commerciale di mq 150 circa con servizi di mq 35 e corte esterna di mq 240. Il locale si presta anche per attività di ristorazione (Bistro'), vista la presenza di una canna fumaria. Si valuta anche la possibilità di acquisto.

CONDIVIDI SUI SOCIAL

DATI PRINCIPALI

Riferimento
631045
Contratto
Affitto
Tipologia
Immobile - Negozio
Superficie
179 mq
Locali
2
Bagni
1
Piano
Piano terra
Totale piani
1

CARATTERISTICHE

Ascensore

COSTI

Canone
Affitto € 2.000,00 al mese
Tipo locazione
4+4

EFFICIENZA ENERGETICA

Stato
Da ristrutturare

MAPPA

ANNUNCI SIMILI