LOCALE COMMERCIALE CON POSSIBILITA' DI CANNA FUMARIA AFFITTO

Via Nizza - Roma (Roma)
Trattativa Riservata
  • Più di 5 locali
  • 550 mq
  • 3 bagni

Negozio in Affitto a Roma

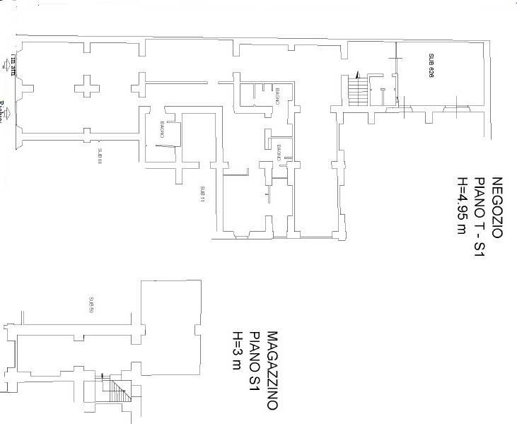
Nelle immediate adiacenze di Via Nizza, nel cuore di una delle zone più dinamiche e servite di Roma, proponiamo in locazione un ampio locale commerciale bilivelli di 550 mq complessivi.
Il locale si distingue per le sue dimensioni e una configurazione strategica: piano terra (420 mq - C/1) area espositiva o di vendita estremamente ampia. È dotato di una porta vetrina e una vetrina aggiuntiva fronte strada; piano seminterrato (130 mq - C/2): questo spazio aggiuntivo è ideale per magazzino, deposito, uffici di supporto, spogliatoi o aree tecniche.
Un grande vantaggio di questo immobile è la possibilità di installare una canna fumaria. Questa caratteristica apre le porte a un'ampia gamma di attività nel settore ristorativo (ristoranti, pizzerie, bistrot), ma anche a panifici, pasticcerie o laboratori alimentari. La flessibilità degli spazi lo rende adatto anche a showroom, supermercati di vicinato, centri medici o studi associati di grandi dimensioni.
L'immobile necessita di completa ristrutturazione.

LEGGI TUTTO

CONDIVIDI SUI SOCIAL

DATI PRINCIPALI

Riferimento
637025
Contratto
Affitto
Tipologia
Immobile - Negozio
Superficie
550 mq
Locali
Più di 5
Bagni
3
Piano
Piano terra
Totale piani
6

CARATTERISTICHE

Ascensore

COSTI

Canone
Trattativa Riservata
Tipo locazione
4+4

EFFICIENZA ENERGETICA

Stato
Da ristrutturare
Riscaldamento
Autonomo
Climatizzazione
Si
Classe energetica
G
IPE
175,00 kWh/m²a

A+

A

B

C

D

E

F

175,00 kWh/m²a | Classe energetica G

G

MAPPA

ANNUNCI SIMILI

AFFITTO 20
€ 7.500 mensili
Negozio in Affitto a Roma (Roma)
  • Più di 5 locali
  • 289 mq
  • 1 bagno
AFFITTO 13
Trattativa Riservata
Negozio in Affitto a Roma (Roma)
  • Più di 5 locali
  • 727 mq
  • 4 bagni
AFFITTO 20
€ 7.500 mensili
Negozio in Affitto a Roma (Roma)
  • Più di 5 locali
  • 311 mq
  • 3 bagni
AFFITTO 20
€ 7.500 mensili
Negozio in Affitto a Roma (Roma)
  • Più di 5 locali
  • 311 mq
  • 3 bagni
AFFITTO
Trattativa Riservata
Negozio in Affitto a Roma (Roma)
  • Più di 5 locali
  • 350 mq
  • 1 bagno
AFFITTO 7
Trattativa Riservata
Negozio in Affitto a Roma (Roma)
  • Più di 5 locali
  • 813 mq
  • 1 bagno
AFFITTO 5
€ 20.000 mensili
Negozio in Affitto a Roma (Roma)
  • Più di 5 locali
  • 250 mq
  • 3 bagni
AFFITTO 20
Trattativa Riservata
Negozio in Affitto a Roma (Roma)
  • Più di 5 locali
  • 400 mq
  • 3 bagni