LOCALE ADIBITO PIZZERIA CON CORTILE PRIVATO E CANNA FUMARIA VENDITA

Genzano di Roma (Roma)
€ 90.000
  • 2 locali
  • 73 mq

Negozio in Vendita a Genzano di Roma

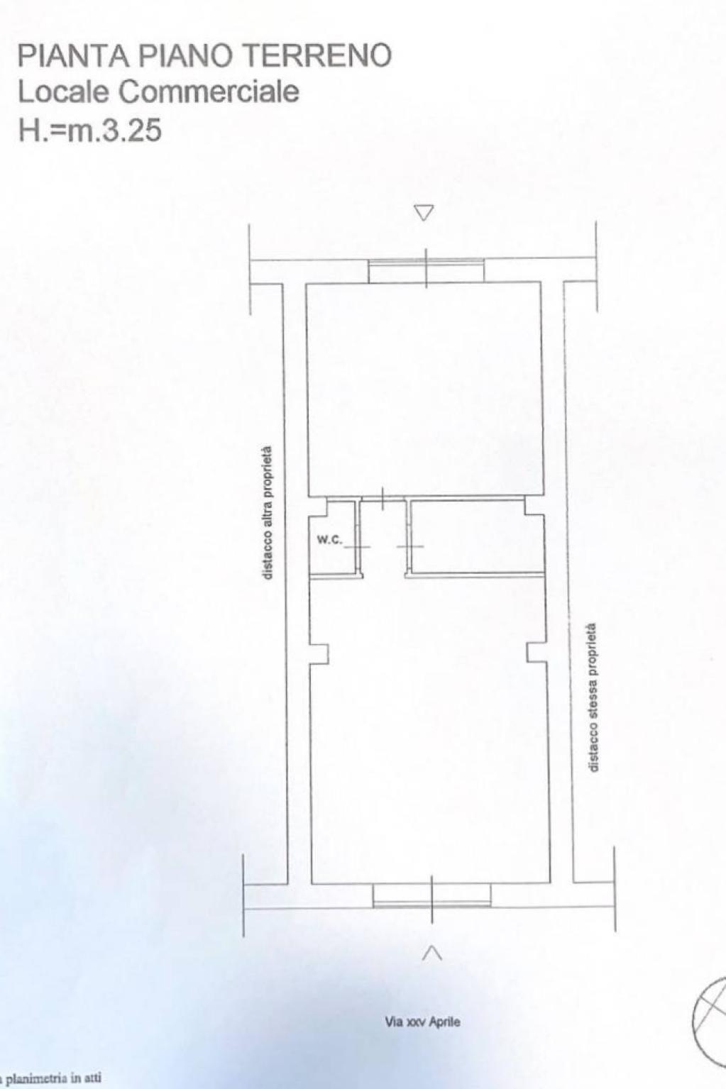
*** genzano di roma *** in zona centrale di ottimo passaggio e quindi molto interessante a livello commerciale proponiamo la vendita delle mura di un locale gia' predisposto per attivita' di pizzeria come da ultima attivita' ventennale.
il locale, molto accogliente, si sviluppa su una metratura di circa 70 mq e vede la presenza di un doppio ingresso, una vetrina su strada e l'accesso dal retro avviene tramite un comodo piazzale dove e' anche possibile parcheggiare.
l' immobile viene venduto con parziale attrezzatura della precedente attivita'.
la proprieta' si completa di bagno, spogliatoio per i dipendenti e magazzino. il locale e'dotato di canna fumaria.
richiesta € 90.000 rif d1787
*** per informazioni contattaci allo 06/9330202 oppure al cell 3205594929 (anche whatsapp) lasciando nome, cognome e il riferimento dell'annuncio, oppure scrivici a: info@panasur.it ******

LEGGI TUTTO

CONDIVIDI SUI SOCIAL

DATI PRINCIPALI

Riferimento
638360
Contratto
Vendita
Tipologia
Immobile - Negozio
Superficie
73 mq
Locali
2
Piano
Piano terra
Totale piani
1

CARATTERISTICHE

Ascensore Semi-arredato Allarme

COSTI

Prezzo
€ 90.000,00

EFFICIENZA ENERGETICA

Stato
Ristrutturato
Riscaldamento
Autonomo
Climatizzazione
Si
Classe energetica
G
IPE
175,00 kWh/m²a

A+

A

B

C

D

E

F

175,00 kWh/m²a | Classe energetica G

G

MAPPA

ANNUNCI SIMILI

VENDITA 19
€ 99.000
Negozio in Vendita a Genzano di Roma (Roma)
  • 2 locali
  • 140 mq
  • 2 bagni