Garbatella - Colombo - LOCALE COMMERCIALE in vendita VENDITA

Via di Villa Belardi - Roma, Zona Garbatella
€ 345.000
  • 2 locali
  • 97 mq
  • 1 bagno

Negozio in Vendita a Roma

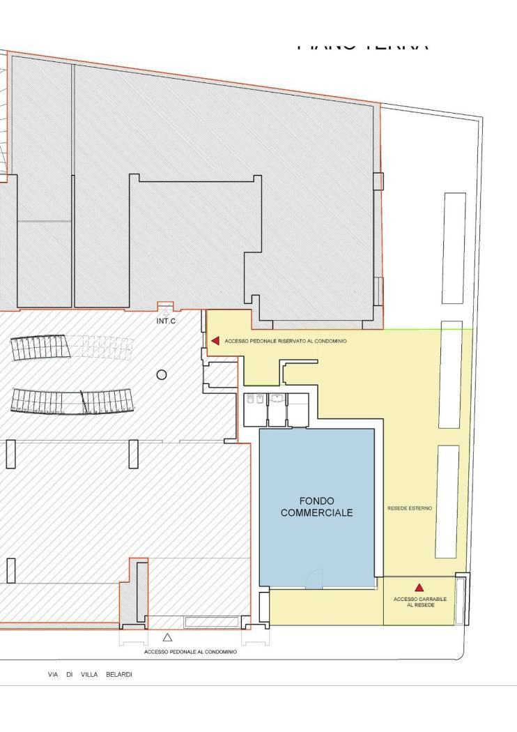
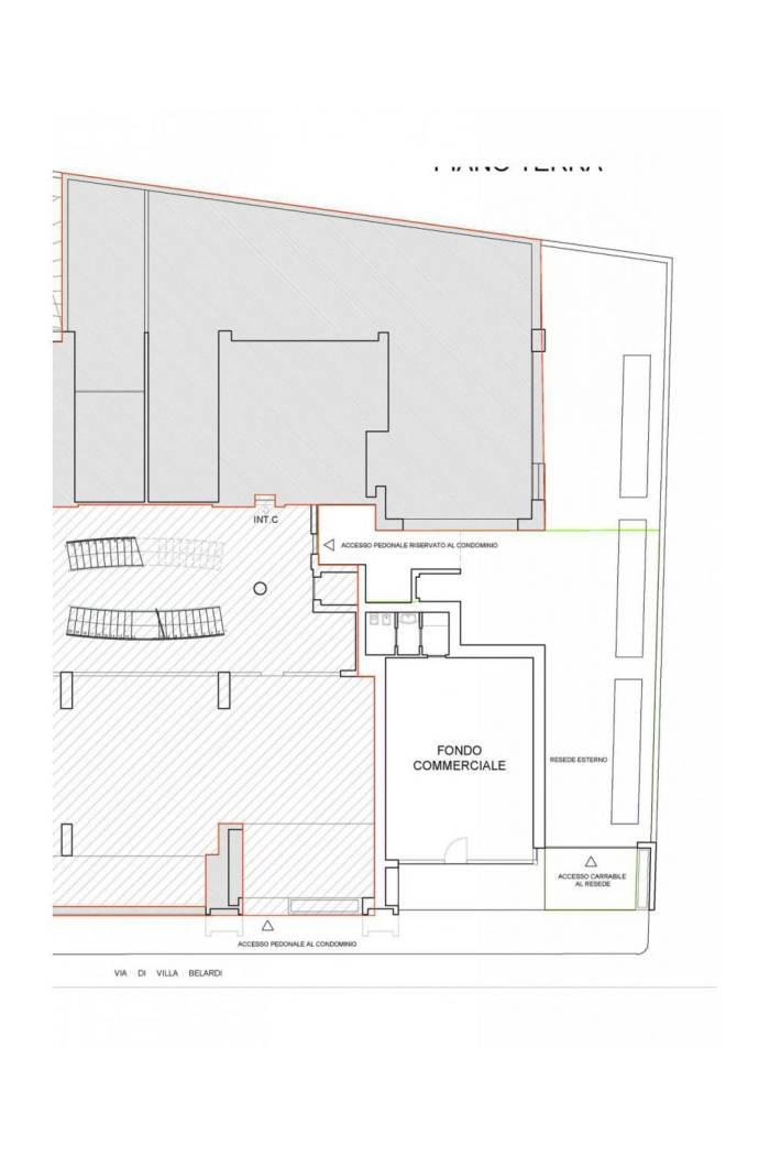
In una delle zone più commerciali di Roma. In questa Location previlegiata a poca distanza dalla Regione Lazio e dal cuore pulsante della Garbatella, che conta la presenza di numerosi edifici direzionali e residenziali, alberghi, nonché banche e società finanziarie, studi legali e uffici privati, proponiamo la vendita di un interessante locale commerciale C/1 dal grande impatto visivo. Luminoso e in perfetto stato. La proprietà ha una consistenza di 84 mq circa con due grandi vetrine che si affacciano su uno spazio esteno di proprietà di mq 120 ca. oltre alla possibilità di acquisto di uno spazio di parcheggio nel garage condominiale di mq 40 ca.
Per ulteriori informazioni o per richieste di visite telefonare al 335470318 o info@astaldire.it

LEGGI TUTTO

CONDIVIDI SUI SOCIAL

DATI PRINCIPALI

Riferimento
637694
Contratto
Vendita
Tipologia
Immobile - Negozio
Superficie
97 mq
Locali
2
Bagni
1
Piano
Piano terra
Totale piani
5
Box/Posto auto
Doppio

CARATTERISTICHE

Ascensore Arredato

COSTI

Prezzo
€ 345.000,00

EFFICIENZA ENERGETICA

Stato
Ristrutturato
Anno costruzione
2015
Riscaldamento
Autonomo
Climatizzazione
Si
Classe energetica
G
IPE
175,00 kWh/m²a

A+

A

B

C

D

E

F

175,00 kWh/m²a | Classe energetica G

G

MAPPA

ANNUNCI SIMILI