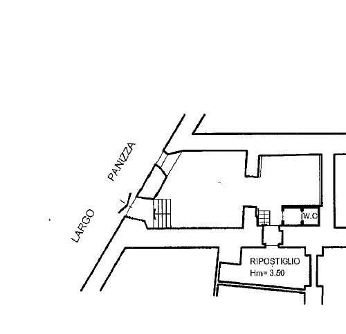
Frascati – Largo Augusto Panizza | Locale C/1 in Vendita VENDITA

Largo Augusto Panizza 11 - Frascati (Roma)
€ 159.000
  • 2 locali
  • 86 mq
  • 1 bagno

Negozio in Vendita a Frascati

Nel cuore di Frascati e precisamente in Largo Augusto Panizza,in una zona di forte passaggio ed in posizione strategica che garantisce un'ottima visibilità, proponiamo in vendita locale commerciale categoria C/1 di circa 86 mq commerciali.
L’immobile è conosciuto come storico ex ristorante “Grottazzurra”, oggi non più operativo, e rappresenta un’interessante opportunità per chi desidera riavviare un’attività di ristorazione o sviluppare un nuovo progetto commerciale.
Gli spazi interni risultano funzionali e facilmente modulabili in base alle esigenze, adatti sia alla somministrazione sia ad altre tipologie di attività.
Interessante opportunità di ampliamento: possibilità di riscatto del locale adiacente, di metratura inferiore, ideale come estensione dell’attività, deposito o laboratorio.
Soluzione adatta sia per utilizzo diretto sia per investimento.

Le presenti informazioni e planimetrie sono meramente indicative e non costituiscono elementi contrattuali. Per prenotare una visita all'immobile o per richiedere maggiori informazioni potete contattare la nostra sede in via Nomentana 861 I-O ai seguenti recapiti telefonici: 06/86558617 - 3519485469, oppure scrivere al nostro indirizzo mail: segreteria@volpescase-re.com Mettete mi piace alle nostre pagine Facebook & Instagram Volpes Case M&N Real Estate per rimanere sempre aggiornati sulle proposte immobiliari.

LEGGI TUTTO

CONDIVIDI SUI SOCIAL

DATI PRINCIPALI

Riferimento
637637
Contratto
Vendita
Tipologia
Immobile - Negozio
Superficie
86 mq
Locali
2
Bagni
1
Piano
Piano terra
Totale piani
5

CARATTERISTICHE

Ascensore

COSTI

Prezzo
€ 159.000,00

EFFICIENZA ENERGETICA

Stato
Abitabile
Riscaldamento
Autonomo
Classe energetica
E
IPE
175,00 kWh/m²a

A+

A

B

C

D

175,00 kWh/m²a | Classe energetica E

E

F

G

MAPPA