FLAMINIO PIZZA AL TAGLIO IN LOCALE CON CANNA FUMARIA VENDITA

Viale Pinturicchio 51/A - Roma, Zona Flaminio
€ 169.000
  • 2 locali
  • 60 mq
  • 1 bagno

Negozio in Vendita a Roma

x ispezione cucina solo di mattina presto per info e dettagli con il proprietario invece la disponibilità è di pomeriggio dalle 16:00
ubicazione e descrizione:
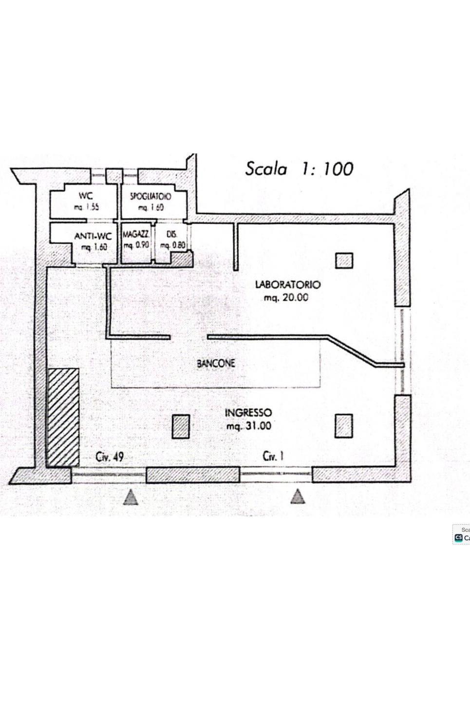
nel quartiere flaminio,adiacente piazza mancini proponiamo la vendita di una storica attivita' da oltre 30 anni sul territorio attualmente operante e con ottimi fatturati. licenza storica -secondo municipio- attivita’ di pizzeria a taglio,girarrosto e tavola fredda esercitata in locale commerciale di circa 60 mq su 3 vetrine fronte strada. la proprieta' vende dopo decenni di attivita' e per cambio progetto. il locale e' dotato di canna fumaria. la vendita dell'attivita' e' comprensivo di tutta la stigliatura visionata ed e' pronta a lavorare da subito poiché completa ed in ottimo stato.

orari e indotto eventi di zona:
l'attivita' e' aperta dal martedi alla domenica essendo la zona anche ricca di eventi sportivi e musicali. ne sono esempio l'indotto derivante dello stadio olimpico, eventi di calcio nel week end o durante le coppe infrasettimanale e come concerti estivi da un lato, i numerosi uffici quali l'enea e l'inps nelle immediate vicinanze, il capolinea di tutti gli autobus di zona quale piazza mancini con continuativo via vai pedonale, nonché gli internazionali di tennis e l'audiotrium, e per concludere anche la discoteca opus club dietro l'angolo che per 2/3 giorni a settimana e' operante nel campo eventi.
attualmente l'attivita' ha 4 dipendenti (compreso titolare) e lavora fino alle 22:00 eccetto per i giorni di partite o concerti che allunga l'orario fino a necessita' raggiunte.
nb: per maggiori info su tutta la stigliatura, il fatturato annuo o giornaliero, le medie o fatture merci e cmq per tutte le info necessarie rinviamo alla visione in loco con il proprietario solo dalle 16:00 in poi.

locazione delle mura:
prezzo del nuovo contratto di locazione richiesto 6+6 a partire da 2400 euro circa 2 mensilita di deposito cauzionale se sufficienti le garanzie prestate. possibilita' di affiancamento per 30/60 gg per presentazione cliente ausiliando passaggio da proprieta' storica a nuova.
nb: per motivi di privacy utilizziamo foto di repertorio. e' fatto divieto recarsi in loco senza appuntamento o senza il consulente immobiliare dedicato

stigliatura :
1frigo vetrina ,1impastatrice doppia velocita' 25kg di impasto, 1surgelatore a pozzetto,1surgelatore gelati,2 frigo vetrine grandi,1 frigo vetrina piccola, 1 1girarrosto a gas 12 polli,1tritacarni + grattugia, 1 forno microonde, 1banco frigo con piano in marmo,1 banco neutro, 1armadio frigo grande,1 armadio frigo piccolo,1 forno 3 bocche elettrico (2bocche da 2 teglie 40x60 1 bocca da 3 teglie 40x 60) 16 anni di vita, 1cucina 4 fuochi grande 4anni di vita, 1 friggitrice 2 vasche a gas 2 anni di vita, 1 affettatrice disco da 30, 1lavapiatti 2 anni vita, 1 lavello 1 vasca, 1 pensile spogliatoio, 1 pensile, 2 condizionatori in sala 2 anni vita, 1 banco con ruote e sotto frigo, 1 banco vendita mt 6,5 circa con scaldavivande 4 vasche, 1 rastrelliera, 1tramoggia x farina, impianto videosorveglianza, impianto stereo , 3 tv color,2 bilance elettroniche,1bilancia elettronica da laboratorio.

per info e visite (preferibilm dalle 16:00 in poi ma la mattina purche senza visione ne ingresso nel laboratorio ne intervista alla proprieta')
riviera imm.re 00196 roma
via flaminia 393 c
06.3234.091
339.64.32.890
328.77.17.849

LEGGI TUTTO

CONDIVIDI SUI SOCIAL

DATI PRINCIPALI

Riferimento
631120
Contratto
Vendita
Tipologia
Immobile - Negozio
Superficie
60 mq
Locali
2
Bagni
1
Piano
Piano terra
Totale piani
7
Box/Posto auto
Doppio

CARATTERISTICHE

Ascensore Arredato Allarme

COSTI

Prezzo
€ 169.000,00
Spese condominiali
€ 80,00 / mese

EFFICIENZA ENERGETICA

Anno costruzione
1900
Climatizzazione
Si
Classe energetica
G
IPE
175,00 kWh/m²a

A+

A

B

C

D

E

F

175,00 kWh/m²a | Classe energetica G

G

MAPPA

ANNUNCI SIMILI