€ 3.800 mensili
  • 1 locale
  • 180 mq
  • 2 bagni

Negozio in Affitto a Roma

Eur - Torrino Nord
proponiamo in locazione locale commerciale su due livelli e due vetrine fronte strada oltre oltre che esposizione verso l'aerea condominiale interna estremamente curata.
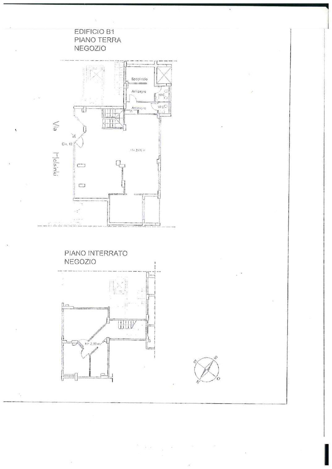
Al piano terra tre ampi ambienti, oltre che un ripostiglio, un'area ristoro e due bagni. Al piano inferiore, collegato mediante comoda scala interna una seconda sala con le finestre a bocca di lupo.
Entrambi i piani sono accatastati come c1(locale commerciale), la superficie al piano terra è di circa mq 60.
Il locale si presenta in ottime condizioni ed attualmente è utilizzato per corsi di formazione in ambito estetico.
Libero dal 1 settembre 2025
€3.800,00 oltre I.V.A. (CONTRATTO 6 ANNI + 6)

LEGGI TUTTO

CONDIVIDI SUI SOCIAL

DATI PRINCIPALI

Riferimento
632062
Contratto
Affitto
Tipologia
Immobile - Negozio
Superficie
180 mq
Locali
1
Bagni
2
Piano
Piano terra
Totale piani
5

CARATTERISTICHE

Ascensore

COSTI

Canone
Affitto € 3.800,00 al mese
Tipo locazione
4+4
Spese condominiali
€ 135,00 / mese, non incluse nel canone

EFFICIENZA ENERGETICA

Stato
Ristrutturato
Classe energetica
F
IPE
351,00 kWh/m²a

A+

A

B

C

D

E

351,00 kWh/m²a | Classe energetica F

F

G

MAPPA