€ 550 mensili
  • 1 locale
  • 40 mq
  • 1 bagno

Negozio in Affitto a Roma

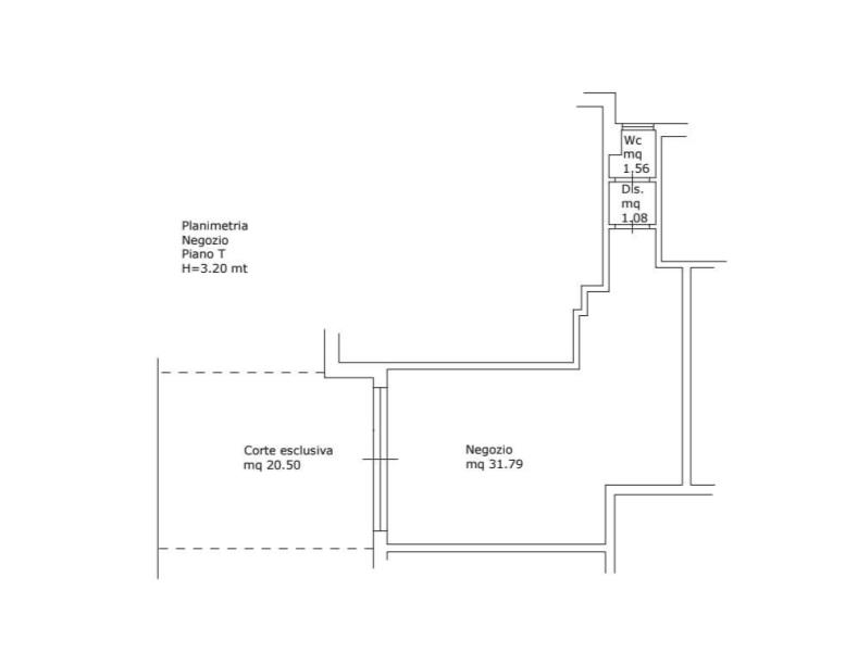
La Santoloci Immobiliare è lieta di proporre in locazione un locale commerciale di circa 40 mq, situato in Via dell’Aquila Reale n. 31/C.
L’immobile dispone di una vetrina su strada ed è composto da un ampio open space adibito al ricevimento del pubblico, oltre a bagno e antibagno. Fa parte della proprietà anche una corte antistante.
Grazie alla sua ubicazione, su una delle vie più commerciali della zona, il locale si presta a diverse tipologie di attività commerciali.
L’ultima attività svolta è stata una toelettatura: pertanto, chi fosse interessato ad avviare un’attività analoga troverà il locale già predisposto.

Le presenti informazioni non costituiscono elemento contrattuale.

LEGGI TUTTO

CONDIVIDI SUI SOCIAL

DATI PRINCIPALI

Riferimento
626417
Contratto
Affitto
Tipologia
Immobile - Negozio
Superficie
40 mq
Locali
1
Bagni
1
Piano
Piano terra
Totale piani
6

CARATTERISTICHE

Ascensore

COSTI

Canone
Affitto € 550,00 al mese
Tipo locazione
4+4
Spese condominiali
€ 25,00 / mese, non incluse nel canone

EFFICIENZA ENERGETICA

Stato
Ristrutturato
Classe energetica
G
IPE
175,00 kWh/m²a

A+

A

B

C

D

E

F

175,00 kWh/m²a | Classe energetica G

G

MAPPA