CESSIONE ATTIVITA' COMMERCIALE - RISTORAZIONE VENDITA

Via Ugo De Carolis - Roma, Zona Balduina
€ 135.000
  • 2 locali
  • 150 mq
  • 2 bagni

Negozio in Vendita a Roma

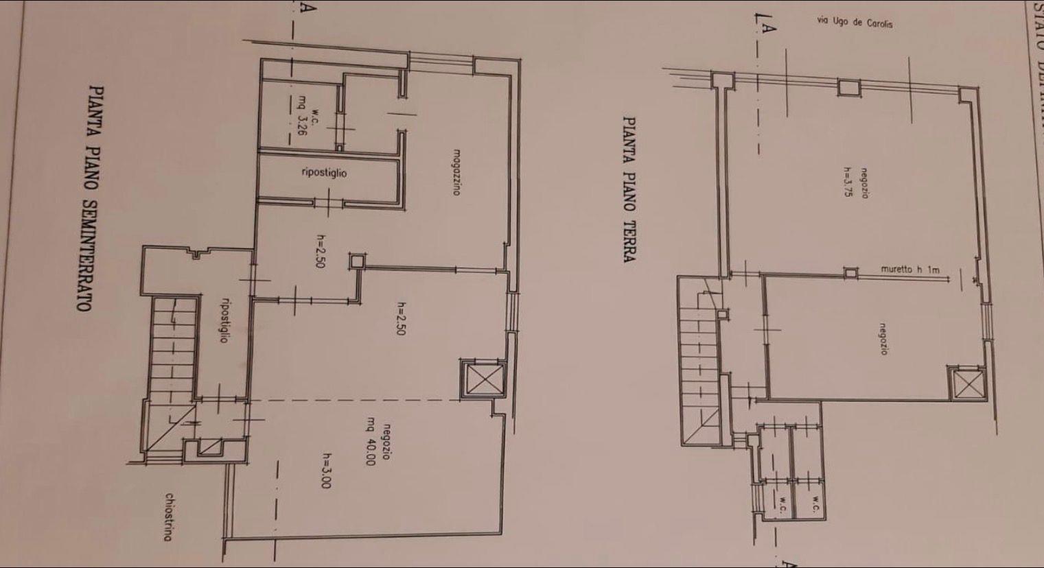
BALDUINA - UGO DE CAROLIS nell'elegante quartiere di Balduina in Via altamente commerciale, proponiamo la vendita di attività commerciale piccole ristorazione con Hamburgeria(paninoteca), cucina da asporto.
Locale completamente ristrutturato di mq complessivi 200 mq con due vetrine su strada. Composta da Piano terra, ampia sala, cucina attrezzata molto grande, doppi servizi. Completa la proprietà un ulteriore ambiente al piano seminterrato ad uso magazzino.
Ottima visibilità e collegamenti. Agevolazioni sul pagamento del prezzo di vendita.
Per maggiori informazioni scrivere una mail al nostro indirizzo info@mazzettagroup.com o telefonare la mattina al numero 06 39892 www.mazzettagroup.com

LEGGI TUTTO

CONDIVIDI SUI SOCIAL

DATI PRINCIPALI

Riferimento
629376
Contratto
Vendita
Tipologia
Immobile - Negozio
Superficie
150 mq
Locali
2
Bagni
2
Piano
Piano terra
Totale piani
4

CARATTERISTICHE

Ascensore Arredato

COSTI

Prezzo
€ 135.000,00

EFFICIENZA ENERGETICA

Stato
Ristrutturato
Anno costruzione
1960
Riscaldamento
Autonomo
Climatizzazione
Si
Classe energetica
G
IPE
175,00 kWh/m²a

A+

A

B

C

D

E

F

175,00 kWh/m²a | Classe energetica G

G

MAPPA