€ 140.000
  • 2 locali
  • 147 mq
  • 2 bagni

Negozio in Vendita a Campagnano di Roma

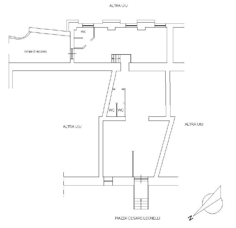
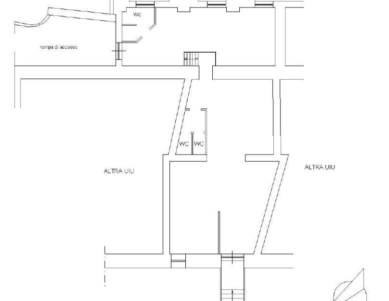
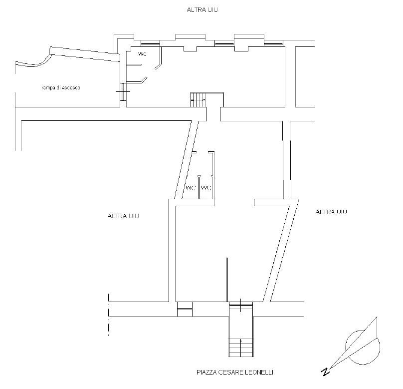
In palazzo antico, piano rialzato, composta da unico ambiente con di 95 mq piu cucina e 3 bagni, con canna fumaria, e spazio esterno
La soluzione appare in ottime condizioni e dispone di canna fumaria.

CONDIVIDI SUI SOCIAL

DATI PRINCIPALI

Riferimento
631041
Contratto
Vendita
Tipologia
Immobile - Negozio
Superficie
147 mq
Locali
2
Bagni
2
Piano
Piano rialzato
Totale piani
3

CARATTERISTICHE

Ascensore Arredato

COSTI

Prezzo
€ 140.000,00

EFFICIENZA ENERGETICA

Stato
Ristrutturato
Anno costruzione
1900
Riscaldamento
Autonomo
Climatizzazione
Si
Classe energetica
G
IPE
175,00 kWh/m²a

A+

A

B

C

D

E

F

175,00 kWh/m²a | Classe energetica G

G

MAPPA