BOCCEA-TORREVECCHIA: AMPIO SPAZIO COMMERCIALE VENDITA

Via Montoggio 29 - Roma, Zona Torrevecchia
€ 320.000
  • 4 locali
  • 420 mq
  • 1 bagno

Negozio in Vendita a Roma

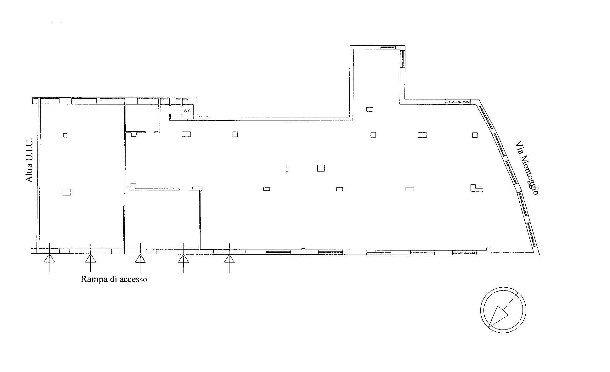
In via Montoggio, una traversa di via Torrevecchia a 100 metri da via Boccea, vendiamo un ampio locale commerciale di 420 mq, accatastato C1.
L’immobile è al piano terra/ interrato di una palazzina in cortina degli anni Settanta. È caratterizzato da una buona luminosità grazie alla presenza di cinque vetrine, con serrande elettriche, e ampie finestre.
La superficie interna, ampia e facilmente modulabile, è adatta ad attività tecniche, artigianali o di servizio come assistenza per piccoli elettrodomestici, negozio di elettronica, ricambi moto e auto, laboratori, attività di riparazione o showroom.
Il locale dotato di bagno, spogliatoio e magazzino di circa 100 mq.

La posizione, in una zona residenziale densamente popolata, garantisce un buon bacino di utenza per attività legate ai servizi.

LEGGI TUTTO

CONDIVIDI SUI SOCIAL

DATI PRINCIPALI

Riferimento
628513
Contratto
Vendita
Tipologia
Immobile - Negozio
Superficie
420 mq
Locali
4
Bagni
1
Piano
Piano terra
Totale piani
5

CARATTERISTICHE

Ascensore

COSTI

Prezzo
€ 320.000,00
Spese condominiali
€ 50,00 / mese

EFFICIENZA ENERGETICA

Stato
Da ristrutturare
Anno costruzione
1970
Classe energetica
G
IPE
175,00 kWh/m²a

A+

A

B

C

D

E

F

175,00 kWh/m²a | Classe energetica G

G

MAPPA

ANNUNCI SIMILI

VENDITA 11
€ 290.000
Negozio in Vendita a Roma (Roma)
  • 4 locali
  • 450 mq
  • 1 bagno
VENDITA 20
€ 199.000
Negozio in Vendita a Roma, Zona Casalotti
  • Più di 5 locali
  • 190 mq
  • 2 bagni
VENDITA 15
€ 550.000
Negozio in Vendita a Roma (Roma)
  • Più di 5 locali
  • 523 mq
  • 4 bagni