€ 33.000
  • 1 locale
  • 60 mq

Negozio in Vendita a Fiumicino

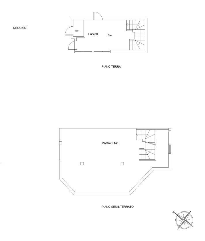
Focene nelle immediate vicinanze di Fregene e Fiumicino, nella via principale, a pochi chilometri dall'aeroporto e a pochi passi dal mare proponiamo la vendita di un'attività commerciale adibita a bar CONTATTACI PER VISITARE L'IMMOBILE Il locale è composto al piano rialzato da una zona vendita ottima per ospitare clienti, una zona adibita a sala slot e un balcone. Infine al piano seminterrato troviamo un magazzino con servizio. Il locale si presenta in ottime condizioni essendo stato recentemente ristrutturato e dispone di un bagno esterno di servizio e due giardini mattonati ai lati del locale CONTATTACI PER VISITARE L'IMMOBILE

LEGGI TUTTO

CONDIVIDI SUI SOCIAL

DATI PRINCIPALI

Riferimento
644115
Contratto
Vendita
Tipologia
Immobile - Negozio
Superficie
60 mq
Locali
1
Piano
Piano terra
Totale piani
2

CARATTERISTICHE

Ascensore

COSTI

Prezzo
€ 33.000,00

EFFICIENZA ENERGETICA

Stato
Ristrutturato
Riscaldamento
Autonomo
Classe energetica
G
IPE
96000,00 kWh/m²a

A+

A

B

C

D

E

F

96000,00 kWh/m²a | Classe energetica G

G

MAPPA

ANNUNCI SIMILI