€ 169.000
  • Più di 5 locali
  • 232 mq
  • 2 bagni

Negozio in Vendita a Tivoli

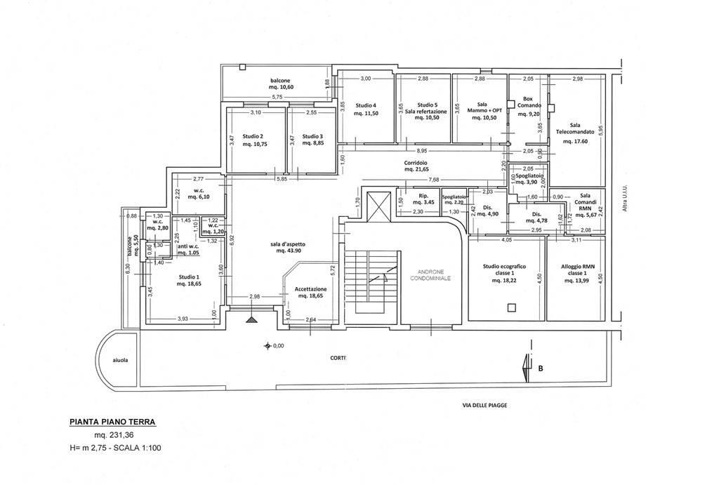
Via delle Piagge, locale commerciale (C1) di 232 mq composto da dieci stanze, due bagni, due balconi. Possibilità di parcheggio. Ottimo per studi medici e/o professionali.

CONDIVIDI SUI SOCIAL

DATI PRINCIPALI

Riferimento
640537
Contratto
Vendita
Tipologia
Immobile - Negozio
Superficie
232 mq
Locali
Più di 5
Bagni
2
Piano
Piano terra
Totale piani
3

CARATTERISTICHE

Ascensore

COSTI

Prezzo
€ 169.000,00

EFFICIENZA ENERGETICA

Stato
Ristrutturato
Riscaldamento
Autonomo
Climatizzazione
Si
Classe energetica
G
IPE
175,00 kWh/m²a

A+

A

B

C

D

E

F

175,00 kWh/m²a | Classe energetica G

G

MAPPA

ANNUNCI SIMILI