TRIESTE - VIA CHIANA VENDITA

Via Chiana 40 - Roma (Roma)
€ 130.000
  • 1 locale
  • 110 mq
  • 1 bagno

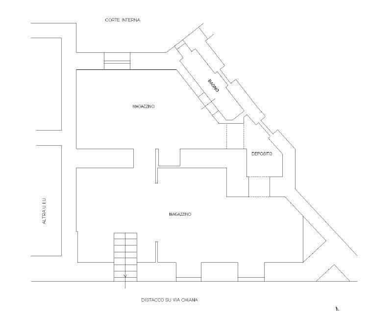
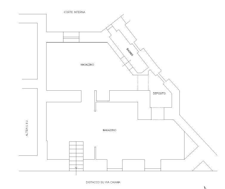
Magazzino in Vendita a Roma

Proponiamo in vendita un immobile di circa 110 mq, attualmente adibito a showroom di mobili.
L’immobile si presenta in ottime condizioni ed è così composto:
ingresso,
ampio open space con tre vetrine su strada, che garantiscono ottima visibilità e luminosità,
secondo open space con finestra che affaccia sulla corte interna,
locale deposito finestrato,
servizio finestrato.
La proprietà viene venduta locata, con contratto di locazione in essere con scadenza al 30/04/2031, garantendo una rendita annua di € 12.600,00.
Soluzione ideale per uso investimento.
Le presenti informazioni e planimetrie sono meramente indicative e non costituiscono elementi contrattuali. Per prenotare una visita all'immobile o per richiedere maggiori informazioni potete contattare la nostra sede in via Nomentana 861 I-O ai seguenti recapiti telefonici: 06/86558617 - 3519485469, oppure scrivere al nostro indirizzo mail: segreteria@volpescase-re.com Mettete mi piace alle nostre pagine Facebook & Instagram Volpes Case M&N Real Estate per rimanere sempre aggiornati sulle proposte immobiliari.

LEGGI TUTTO

CONDIVIDI SUI SOCIAL

DATI PRINCIPALI

Riferimento
637632
Contratto
Vendita
Tipologia
Immobile - Magazzino
Superficie
110 mq
Locali
1
Bagni
1
Piano
Seminterrato

CARATTERISTICHE

Ascensore Allarme

COSTI

Prezzo
€ 130.000,00
Spese condominiali
€ 25,00 / mese

EFFICIENZA ENERGETICA

Stato
Abitabile

MAPPA