Trastevere Magazzino in vendita VENDITA

Viale di Trastevere - Roma, Zona Trastevere
€ 499.000
  • 1 locale
  • 314 mq
  • 1 bagno

Magazzino in Vendita a Roma

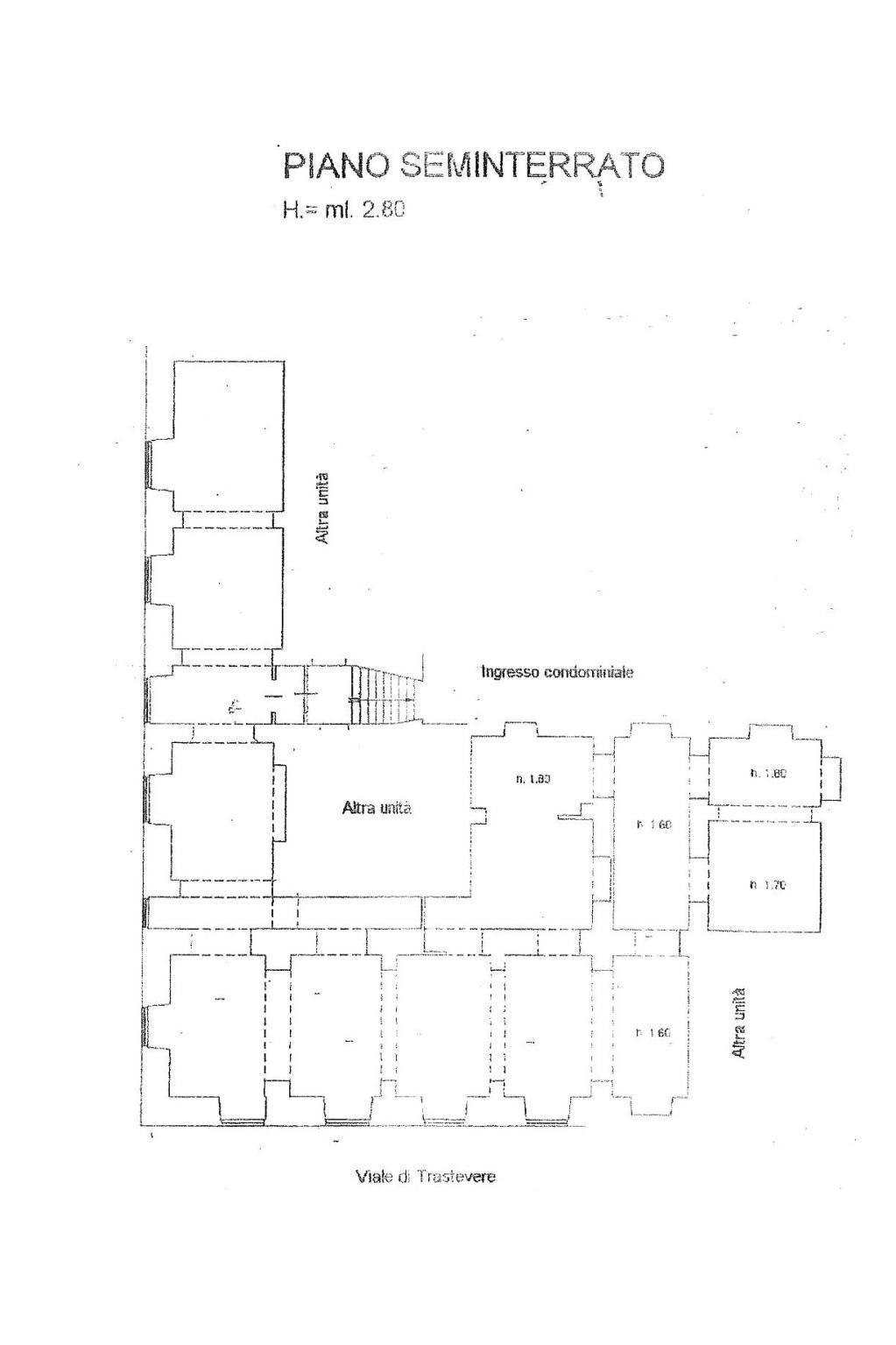
Viale di Trastevere, di fronte al Ministero della Pubblica Istruzione, in prestigioso palazzo d'epoca, proponiamo in vendita un ampio locale/ magazzino con categoria catastale C2. Il locale è posto al piano seminterrato con accesso da un ampio cortile condominiale.
L'immobile si trova in posizione strategica ed è ottimamente collegato con il tram 8, la stazione Trastevere e diverse linee di autobus.
Possibilità di rilevare attività storica commerciale di tipografia artigianale, studio di fotoincisione e grafica pubblicitaria.

CONDIVIDI SUI SOCIAL

DATI PRINCIPALI

Riferimento
634300
Contratto
Vendita
Tipologia
Immobile - Magazzino
Superficie
314 mq
Locali
1
Bagni
1
Piano
Seminterrato

CARATTERISTICHE

Ascensore

COSTI

Prezzo
€ 499.000,00
Spese condominiali
€ 80,00 / mese

EFFICIENZA ENERGETICA

Stato
Abitabile
Anno costruzione
1900

MAPPA