Magazzino/Deposito AFFITTO

Via Nomentana 273 - Fonte Nuova (Roma)
€ 1.800 mensili
  • 1 locale
  • 320 mq
  • 1 bagno

Magazzino in Affitto a Fonte Nuova

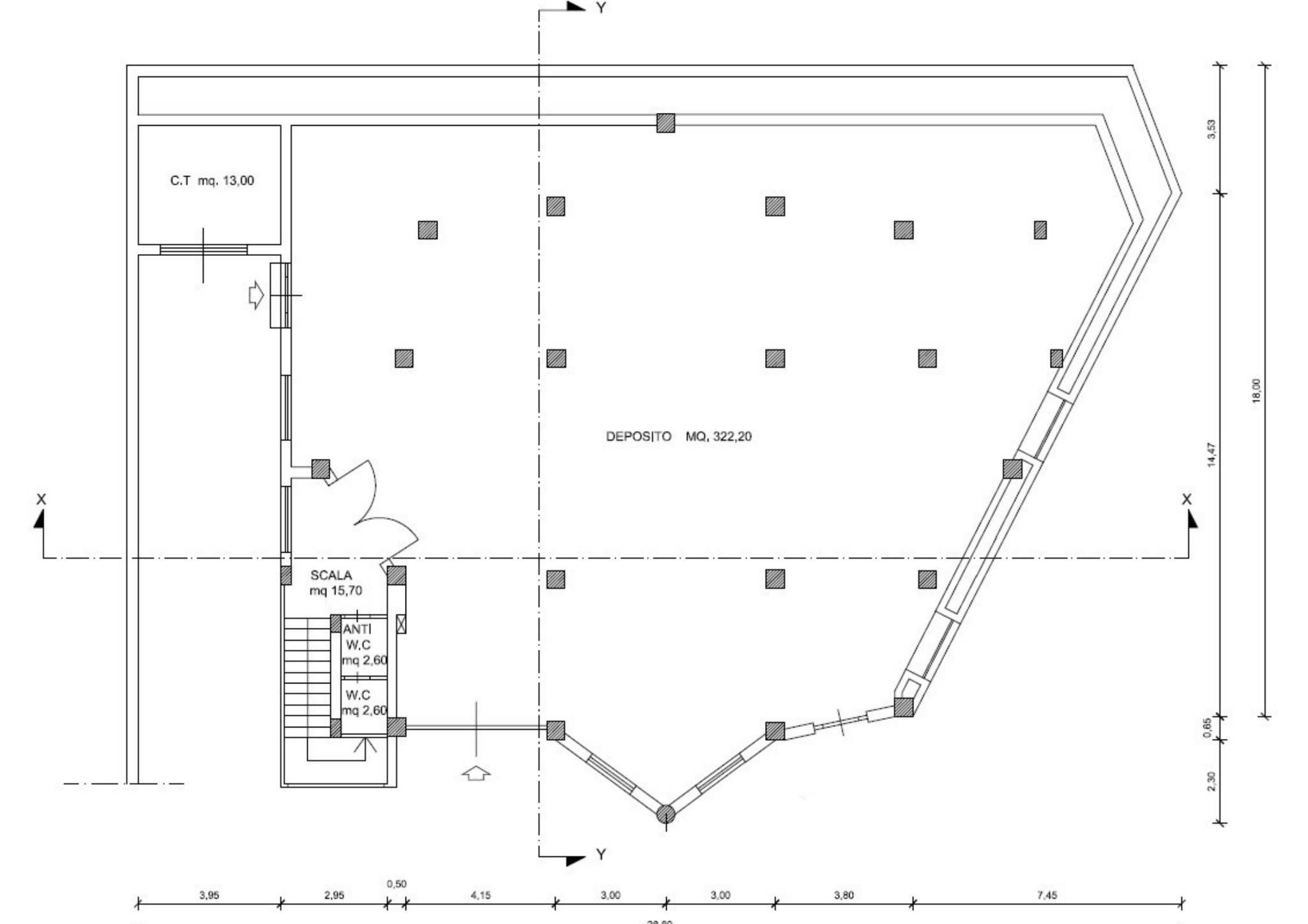
Via Nomentana Km. 20,00 - Porzione di Fabbricato Commerciale con accesso autonomo e corte antistante per parcheggio e movimentazione merci. L'immobile è in discreto stato e consta di un Openspace. Portata max con limitazioni Molto luminoso , servizi igienici al piano. Disponibilità immediata.

CONDIVIDI SUI SOCIAL

DATI PRINCIPALI

Riferimento
639062
Contratto
Affitto
Tipologia
Immobile - Magazzino
Superficie
320 mq
Locali
1
Bagni
1
Piano
Piano terra

CARATTERISTICHE

Ascensore

COSTI

Canone
Affitto € 1.800,00 al mese
Tipo locazione
4+4

EFFICIENZA ENERGETICA

Stato
Abitabile
Anno costruzione
1991

MAPPA