Magazzino - Deposito in Affitto AFFITTO

Via Paiella Catullo 13 - Marino (Roma)
€ 1.800 mensili
  • 1 locale
  • 230 mq
  • 1 bagno

Magazzino in Affitto a Marino

marino - via paiella catullo 13
proponiamo in affitto
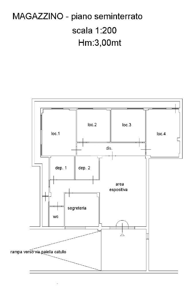
locale deposito utilizzato anche per sede amministrativa
diviso in quattro ambienti cosi composti:
ampia reception con quattro postazioni di lavoro adibiti ad ufficio, di cui due direzionali e zona di attesa
ampia sala riunioni con videoproiettore, collegata tramite corridoio ad altri due ambienti
servizio igienico
condizionato e camblato per fonia e dati
rampa di proprieta'

mcm srl affiliato tecnocasa
via della stazione di ciampino, 14/c 00118 (roma)
numero fisso: 0679846807
whatsapp: 3518612154
e-mail: rmhie@tecnocasa.it
orari apertura ufficio 9:00/19:30 sabato 09:00/13:00

LEGGI TUTTO

CONDIVIDI SUI SOCIAL

DATI PRINCIPALI

Riferimento
641984
Contratto
Affitto
Tipologia
Immobile - Magazzino
Superficie
230 mq
Locali
1
Bagni
1

CARATTERISTICHE

Ascensore

COSTI

Canone
Affitto € 1.800,00 al mese
Tipo locazione
4+4

EFFICIENZA ENERGETICA

Stato
Abitabile
Anno costruzione
1980

MAPPA