CIAMPINO (RM) Via Ancona. Ampio magazzino con due rampe carr VENDITA

via Ancona - Ciampino (Roma)
€ 400.000
  • 1 locale
  • 560 mq
  • 2 bagni

Magazzino in Vendita a Ciampino

CIAMPINO (RM) Via Ancona. Adiacente Via Bologna ed a breve distanza dalla Via dei laghi.
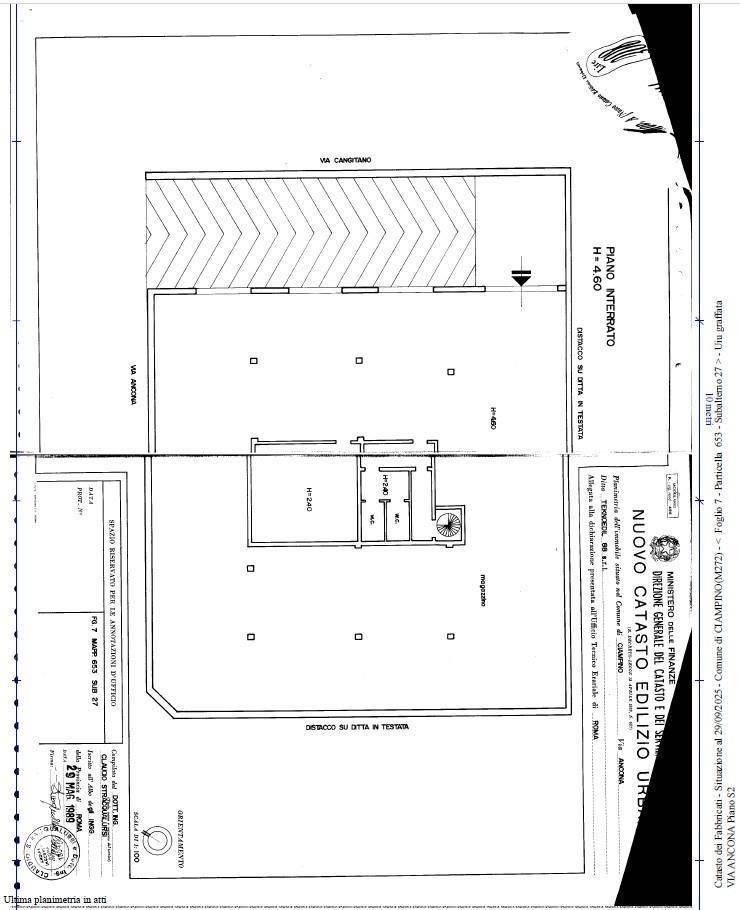
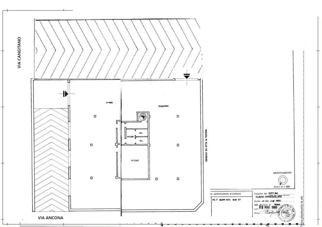
Ampio locale ad uso magazzino di 560 mq al piano interrato di una palazzina residenziale in cortina.
Il locale con Categoria C/2 (magazzino) è attualmente adibito ad uso deposito e sede di attività all'ingrosso. E' organizzato su unico livello con doppio ingresso ed un' altezza interna di mt 5,00 . L' area centrale del locale accoglie, uffici, vari locali a servizio e due bagni; Il resto della superficie è organizzato con scaffalature per lo stoccaggio dei materiali, mentre tutti gli spazi di manovra sono ben fruibili con muletti.
Le rampe carrabili: la più grande con accesso dalla Via Cangitano di 335 Mq comoda anche per il parcheggio delle auto, la più piccola con accesso dalla Via Ancona di 140 Mq.
Possibilità di cambio d'uso ad autorimessa con frazionamento a box e posti auto.
Ottima opportunità

Dettagli
locale uso magazzino
unico livello
mq interni 560
doppio ingresso
due rampe carrabili
Riscaldamento autonomo

LEGGI TUTTO

CONDIVIDI SUI SOCIAL

DATI PRINCIPALI

Riferimento
643802
Contratto
Vendita
Tipologia
Immobile - Magazzino
Superficie
560 mq
Locali
1
Bagni
2
Piano
Seminterrato

CARATTERISTICHE

Ascensore

COSTI

Prezzo
€ 400.000,00

EFFICIENZA ENERGETICA

Stato
Abitabile
Anno costruzione
1990

MAPPA