CAMPO DE' FIORI -VIA GIULIA - PRESTIGIOSO AFFITTO

Via Giulia - Roma (Roma)
€ 2.100 mensili
  • 1 locale
  • 183 mq
  • 2 bagni

Magazzino in Affitto a Roma

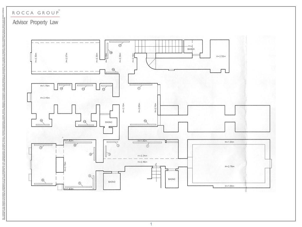
Lo Studio Immobiliare Rocca Group Advisor Property Law, propone in locazione In una delle vie più chic della capitale, in Via Giulia, in prossimità dell'Ambasciata di Francia e di Piazza Farnese, all'interno del rappresentativo e ricercato Palazzo Cisterna, con servizio di portineria, un prestigioso immobile-magazzino ideale per riunioni aziendali, gallerie d'arte, eventi e vendite all'asta. Ideale come sede di rappresentanza o show room. L’immobile, al piano seminterrato si sviluppa su di un unico livello per una superficie di 300 mq circa. Il palazzo, un unicum del centro storico romano, ci accoglie con una galleria d'ingresso ed un incantevole cortile interno. Le spese condominiali ammontano a 300,00€ mensili. Per maggiori informazioni o per fissare un appuntamento, INQUADRARE IL QRCODE, contattare al numero 06.45435251 oppure inviare una mail a info@roccagroup.it - www.roccagroup.it . *Le presenti informazioni e planimetrie sono meramente indicative e non costituiscono elementi contrattuali. Le superfici sono indicative e risultanti dalle planimetrie catastali. L'inserzionista non garantisce l'esattezza delle superfici. La Rocca Group Advisor Property Law offre ai propri clienti VALUTAZIONI e STIME IMMOBILIARI GRATUITE, un servizio di marketing e promozione pubblicitaria strategica del proprio immobile, selezione accurata nella ricerca dell'acquirente, consulenza tecnico-legale, supporto qualificato da parte di professionisti quali architetti, geometri e notai, realizzando tutto questo con la serietà e la trasparenza che da sempre la contraddistinguono. Orari Segreteria Studio Immobiliare Rocca Group Advisor Property Law: lunedì 09:30–13, 14:30–17:30 martedì 09:30–13, 14:30–17:30 mercoledì 09:30–13, 14:30–17:30 giovedì 09:30–13, 14:30–17:30 venerdì 09:30–13, 14:30–17:30 sabato 10:30–12 domenica Chiuso

LEGGI TUTTO

CONDIVIDI SUI SOCIAL

DATI PRINCIPALI

Riferimento
631961
Contratto
Affitto
Tipologia
Immobile - Magazzino
Superficie
183 mq
Locali
1
Bagni
2
Piano
Seminterrato

CARATTERISTICHE

Ascensore

COSTI

Canone
Affitto € 2.100,00 al mese
Tipo locazione
4+4
Spese condominiali
€ 300,00 / mese, non incluse nel canone

EFFICIENZA ENERGETICA

Stato
Ristrutturato
Anno costruzione
1600

MAPPA

ANNUNCI SIMILI