Appia all’angolo di Via Annia Regilla e Via di San Tarcisio VENDITA

Via Annia Regilla 123 - Roma, Zona Quarto Miglio
€ 258.000
  • 1 locale
  • 670 mq
  • 1 bagno

Magazzino in Vendita a Roma

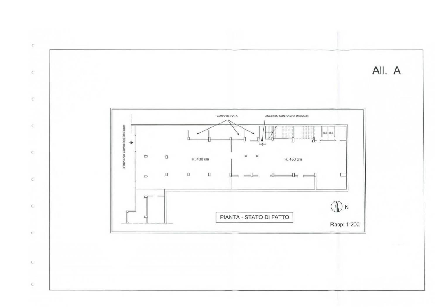
PROVVIGIONE ZERO SE VENDE CON NOI ! CI CHIAMI PER UNA VALUTAZIONE GRATUITA! Appia nuova Quarto miglio Magazzino trasformabile in NEGOZIO ubicato nel cuore di Roma, all’angolo di Via Annia Regilla e Via di San Tarcisio. Superficie commerciale totale: 670 mq. Per l'immobile è stata presentata una domanda di condono per effettuare il cambio di destinazione con destinazione commerciale negozio C/1 le cui oblazioni sono state pagate parzialmente e la concessione è da ritirare pagando circa ulteriori € 15.000.L'altezza del locale varia da 4,30 a 4,50 metri. L’interno del magazzino è attualmente suddiviso in due grandi ambienti, ulteriormente suddivisi in spazi più piccoli. Questi spazi, delineati da tramezzature vetrate, erano presumibilmente utilizzati come locali uffici o depositi. Inoltre, il magazzino dispone di due servizi igienici e un’ampia area di deposito sul lato sud-est. Il magazzino dispone di due accessi: un accesso carrabile da Via San Tarcisio e un accesso pedonale con rampa di scale da Via Annia Regilla, offrendo così una grande flessibilità operativa. Nonostante la sua posizione sotterranea, il magazzino gode di una buona illuminazione grazie a un sistema di vetrocemento a soffitto e ad un’ampia apertura dotata di saracinesca. Inoltre, una grossa canalizzazione d’aria condizionata che corre lungo il soffitto di tutto il magazzino permette un efficace ricambio d’aria.FOTO SU RICHIESTA IMMOBILE VISITABILE E MUTUABILE. PER INFO MARCO DICKMANN 06/79786066 339/1980066 392/1626575 .
SI PUO' VALUTARE ANCHE UNA TRASFORMAZIONE IN BOX O POSTI AUTO GUARDI I NOSTRI IMMOBILI USANDO QUESTO LINK : https://www.immobiliare.it/agenzie-immobiliari/93358/balduina-immobiliare-roma/?pag=1&sortBy=prezzo&sortDir=desc

LEGGI TUTTO

CONDIVIDI SUI SOCIAL

DATI PRINCIPALI

Riferimento
641711
Contratto
Vendita
Tipologia
Immobile - Magazzino
Superficie
670 mq
Locali
1
Bagni
1
Piano
Interrato
Box/Posto auto
Singolo

CARATTERISTICHE

Ascensore Allarme

COSTI

Prezzo
€ 258.000,00
Spese condominiali
€ 1,00 / mese

EFFICIENZA ENERGETICA

Stato
Abitabile

MAPPA