APPARTAMENTO INDIPENDENTE VENDITA

Via Don Giovanni Minzoni - Albano Laziale (Roma)
€ 129.000
  • Bilocale
  • 60 mq
  • 2 bagni

Casa indipendente in Vendita a Albano Laziale

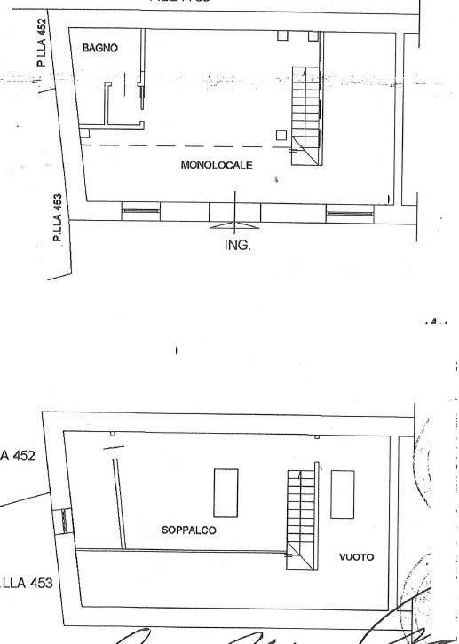
ALBANO: Nel cuore di Albano precisamente in Via don Minzoni, proponiamo in vendita un appartamento di mq 60 sito in zona centralissima e strategica vicina a tutti i servizi: scuole, parchi, supermercati, negozi facilmente raggiungibili. L immobile è posto al piano terra, senza alcuna barriera architettonica. Varcata la porta blindata d ingresso si viene accolti da un elegante soggiorno con angolo cottura dove trascorrere del piacevole tempo in famiglia, da qui si accede nella prima stanza e nel comodo bagno. Nel piano superiore si accede tramite un elegante moderna scala che ci trasporta nel rifugio di tranquillità della casa: La camera da letto resa ancor più accogliente dal tetto in castagno a vista. Al piano troviamo anche un bagno completo di vasca. Completa la proprieta una caratteristica ed ampia taverna situata a qualche metro dall'abitazione. € 129.000,00 CHI SIAMO Immobiliare Savini è un'agenzia immobiliare con sede in Genzano di Roma, che opera nel settore immobiliare da quasi 30 anni. I NOSTRI SERVIZI: Valutazione gratuita La valutazione di un immobile viene rilasciata in forma scritta e include un preventivo comprensivo delle spese fiscali connesse all'operazione. Servizio finanziario Vantaggi per chi vende: Garanzia che l'importo del mutuo venga messo a disposizione nel più breve tempo possibile. Vantaggi per chi compra: Rapidità nella delibera. Competitività dei prodotti, abbattimento delle spese. Soluzioni personalizzate. Semplificazione della documentazione. Banca dati. Vantaggi per chi vende: Velocizzazione dei tempi di vendita grazie ad un archivio di potenziali clienti. Indicazioni su quanto gli acquirenti sono disposti a spendere per una certa tipologia d'immobile. Vantaggi per chi compra: La tranquillità che la propria richiesta venga seguita con attenzione, in modo che si moltiplichino le possibilità di contatti utili e veloci. Giornale per la promozione degli immobili Vantaggi per chi vende: Servizio pubblicitario gratuito su riviste specializzate del settore al livello locale e nazionale. Vantaggi per chi compra: Immobili spesso illustrati da fotografie o planimetrie. Ampia panoramica degli annunci immobiliari. Aggiornamento Periodico sugli sviluppi riguardanti la gestione dell'incarico conferito mediante contatto telefonico e relazioni scritte in cui vengono analizzati i contatti e le eventuali offerte.

LEGGI TUTTO

CONDIVIDI SUI SOCIAL

DATI PRINCIPALI

Riferimento
641138
Contratto
Vendita
Tipologia
Casa indipendente
Superficie
60 mq
Locali
2
Camere da letto
1
Cucina
Angolo cottura
Bagni
2
Piano
Piano terra
Totale piani
1

CARATTERISTICHE

Ascensore

COSTI

Prezzo
€ 129.000,00

EFFICIENZA ENERGETICA

Riscaldamento
Autonomo
Classe energetica
G
IPE
175,00 kWh/m²a

A+

A

B

C

D

E

F

175,00 kWh/m²a | Classe energetica G

G

MAPPA

ANNUNCI SIMILI

VENDITA 20
€ 490.000
Casa indipendente in Vendita a Albano Laziale (Roma)
  • Più di 5 locali
  • 180 mq
  • 3 bagni
VENDITA 20
€ 259.000
Casa indipendente in Vendita a Castel Gandolfo (Roma)
  • Più di 5 locali
  • 130 mq
  • 3 bagni
VENDITA 20
€ 498.000
Casa indipendente in Vendita a Marino (Roma)
  • Più di 5 locali
  • 260 mq
  • 4 bagni