Porzione capannone Via Adolfo Consolini n. 22, Tivoli (RM) VENDITA

Via Adolfo Consolini 22 - Tivoli (Roma)
€ 120.176
  • 3 locali
  • 396 mq

Capannone in Vendita a Tivoli

POSSIBILITA' DI ASSISTENZA PER TUTTI GLI IMMOBILI IN ASTA, ANCHE QUELLI NON PUBBLICATI DAL NOSTRO STUDIO.
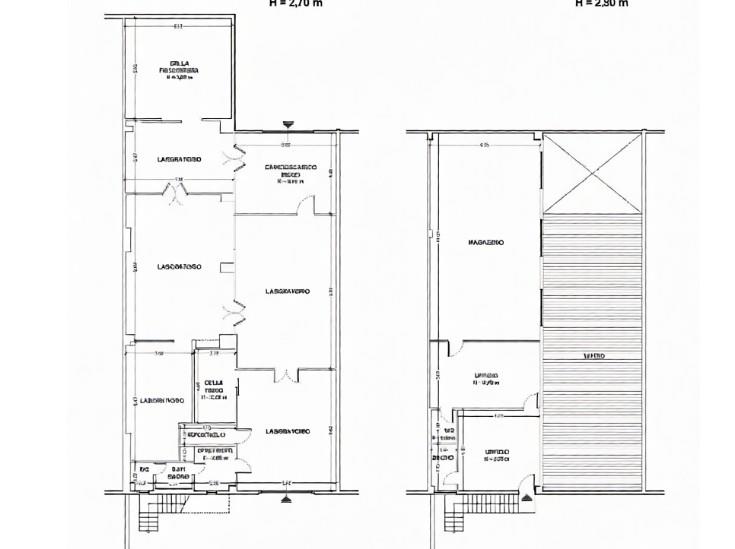
Tivoli (RM) Via Adolfo Consolini n. 22. Porzione di capannone industriale di superficie posto su n. 2 livelli, servito da una corte sul prospetto principale e sul retro prospetto, di proprietà di terzi, che consente un ampio parcheggio all'aperto. Destinazione d'uso industriale con laboratori, n. 2 celle frigorifere, locali di servizio e accessori per le maestranze, uffici. Attualmente adibito a packaging ortofrutta. Superficie commerciale mq 396 circa.
OFFERTA MINIMA: € 120.176,25
DATA DELL'ASTA: 22/04/2026 ore 12:00
Casa è dove si trova il cuore. (“Plinio il vecchio”)
Con lo STUDIO GIULIANI REAL ESTATE il sogno diventa realtà!
Il nostro team di professionisti offre assistenza, consulenza legale e stragiudiziale per tutti gli immobili in asta giudiziaria e libero mercato. I servizi offerti al nostro cliente sono molteplici:
- Ricerca dell’immobile con valutazione immobiliare
- Valutazione preliminare tecnica e studio della perizia con geometra in sede;
- Valutazione economica con broker finanziario in sede con possibilità di mutuo fino al 100% del prezzo di aggiudicazione;
- Prenotazione visita degli immobili oggetto di interesse tramite il custode giudiziario;
- Partecipazione in asta, il cliente viene seguito fino alla consegna delle chiavi;
- Effettuiamo inoltre pratiche di saldo e stralcio e di acquisto del credito dai maggiori istituti bancari.
- La nostra parcella è dovuta solo in caso di aggiudicazione.
- Il nostro team è a vostra completa disposizione per fornirvi tutte le informazioni e per fissare un appuntamento per una consulenza gratuita presso le sedi di Velletri o Nettuno.
Puoi consultare tutti gli immobili disponibili in aggiornamento quotidiano sulla nostra pagina agenzia.
Contattaci per una consulenza gratuita!

LEGGI TUTTO

CONDIVIDI SUI SOCIAL

DATI PRINCIPALI

Riferimento
626855
Contratto
Vendita
Tipologia
Immobile - Capannone
Superficie
396 mq
Locali
3
Piano
Piano terra
Totale piani
2

CARATTERISTICHE

Ascensore

COSTI

Prezzo
€ 120.176,00

EFFICIENZA ENERGETICA

Stato
Abitabile

MAPPA

ANNUNCI SIMILI

VENDITA 16
€ 450.000
Capannone in Vendita a Tivoli (Roma)
  • Più di 5 locali
  • 870 mq
  • 4 bagni