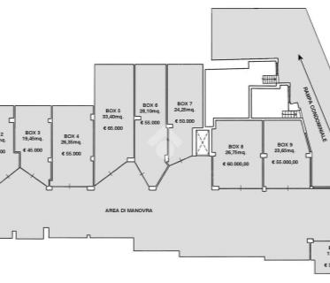
In Via Cuneo, in prossimità dell'incrocio con via Fontana dei Monaci, proponiamo in vendita un comodo box auto, al piano seminterrato di uno stabile in costruzione.
La superficie interna è di 25 mq (4.85 di larghezza x 5.15 di lunghezza).
L'immobile sarà consegnato entro Dicembre 2024.
 
						        
						
						        
						        
					        