Garage - Box in Affitto AFFITTO

VIALE UNGHERIA 17 - Palombara Sabina (Roma)
€ 600 mensili
  • Monolocale
  • 37 mq

Box/Garage/Posto auto in Affitto a Palombara Sabina

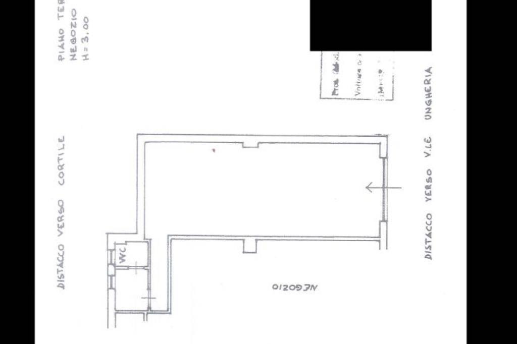
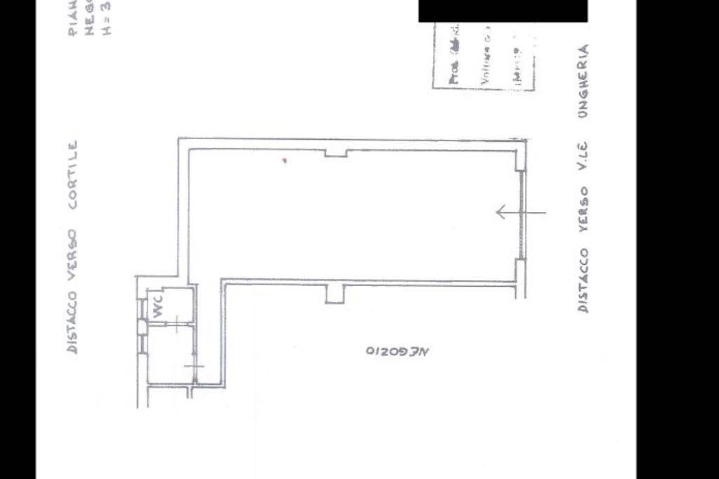
Palombara Sabina, proponiamo in locazione locale commerciale C/1 con vetrina espositiva fronte strada.
L’immobile ha una superficie totale calpestabile di 37 mq , sviluppati su un unico livello. Il locale luminoso e dalla posizione invidiabile è composto da: ampia sala con vetrina espositiva fronte strada, piccolo corridoio, antibagno e bagno con finestra.
Lo stato interno dell’immobile è buono, il locale infatti viene locato con tutti i servizi principali, quali impianto telefonico, elettrico, idrico con acqua diretta e fogna comunale mentre l’impianto termico è fornito tramite climatizzazione.
L’immobile inoltre gode di comodo accesso indipendente al piano terra, facilmente raggiungibile in automobile con possibilità di parcheggio antistante ed è esente da spese condominiali. Gli infissi interni sono in doppio vetro/alluminio, le porte interne invece sono in legno mentre i pavimenti sono in gres.
Uno degli aspetti positivi di questa proprietà è senza dubbio la luminosità data dalla vetrina espositiva che ha affaccio diretto su Viale Ungheria, una delle vie principali di Palombara Sabina. Si distingue poi anche per la sua posizione strategica sulla strada.
Il locale commerciale è adatto a qualsiasi tipo di attività di vendita e rivendita.
Il paese di Palombara è un centro costituito da 13.000 abitanti, dove possiamo trovare sia le principali attività commerciali, che gli uffici pubblici. Ben collegato con la capitale sia con il treno che con la Via Salaria. Se hai il progetto di investire, cosa aspetti a farlo?
Palombara ha tutti i requisiti che stai cercando.
Classe energetica E IPE: 121.57 kwh/mq anno.

LEGGI TUTTO

CONDIVIDI SUI SOCIAL

DATI PRINCIPALI

Riferimento
640456
Contratto
Affitto
Tipologia
Box/Garage/Posto auto
Superficie
37 mq
Locali
1

CARATTERISTICHE

Ascensore

COSTI

Canone
Affitto € 600,00 al mese
Tipo locazione
4+4

EFFICIENZA ENERGETICA

Stato
Abitabile

MAPPA

ANNUNCI SIMILI

AFFITTO 11
€ 700 mensili
Box/Garage/Posto auto in Affitto a Palombara Sabina (Roma)
  • Monolocale
  • 54 mq
AFFITTO 11
€ 1.000 mensili
Box/Garage/Posto auto in Affitto a Palombara Sabina (Roma)
  • Monolocale
  • 397 mq
AFFITTO 19
€ 350 mensili
Box/Garage/Posto auto in Affitto a Marcellina (Roma)
  • Monolocale
  • 62 mq
AFFITTO 2
€ 180 mensili
Box/Garage/Posto auto in Affitto a Tivoli (Roma)
  • Monolocale
  • 30 mq
AFFITTO 2
€ 130 mensili
Box/Garage/Posto auto in Affitto a Tivoli (Roma)
  • Monolocale
  • 20 mq
AFFITTO 20
€ 1.000 mensili
Box/Garage/Posto auto in Affitto a Monterotondo (Roma)
  • Monolocale
  • 125 mq
AFFITTO 10
€ 300 mensili
Box/Garage/Posto auto in Affitto a Tivoli (Roma)
  • Monolocale
  • 20 mq
AFFITTO 11
€ 500 mensili
Box/Garage/Posto auto in Affitto a Tivoli (Roma)
  • Monolocale
  • 40 mq
AFFITTO 20
€ 700 mensili
Box/Garage/Posto auto in Affitto a Tivoli (Roma)
  • Monolocale
  • 120 mq
AFFITTO 6
€ 140 mensili
Box/Garage/Posto auto in Affitto a Tivoli (Roma)
  • Monolocale
  • 14 mq
AFFITTO 10
€ 1.200 mensili
Box/Garage/Posto auto in Affitto a Tivoli (Roma)
  • Monolocale
  • 400 mq