Via Reno - Santa Severa VENDITA

Via Reno - Santa Marinella (Roma)
€ 320.000
  • Trilocale
  • 86 mq
  • 2 bagni

Attico in Vendita a Santa Marinella

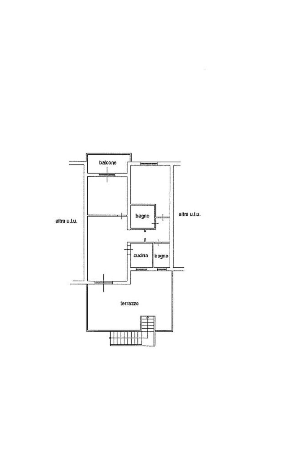
La Nigro Immobiliare propone in vendita a Santa Severa, in posizione privilegiata a pochi metri dalla spiaggia, un appartamento di 77 mq, posto al primo e ultimo piano di una piccola palazzina con ingresso semi indipendente.
L’immobile è composto da: soggiorno, cucina, disimpegno, due camere e due bagni.
Punto di forza della proprietà è il grande terrazzo, coperto da una tettoia in legno, ideale per vivere l’esterno in ogni stagione, oltre a un balcone con vista mare.
L’appartamento è dotato di riscaldamento autonomo, infissi in PVC con doppi vetri, inferriate e climatizzatori. Si presenta in buone condizioni, pronto per essere abitato.
Una soluzione ideale come casa vacanze o abitazione principale, a due passi dal mare e in un contesto tranquillo.
Prezzo richiesto: € 320.000

Per maggiori chiarimenti ed informazioni potete contattarci ai seguenti numeri telefonici agenzia: Mobile: nei seguenti orari: Dal Lunedì al Venerdì dalle 9:15 alle 13:00 e dalle 16:00 alle 19:00; Sabato dalle 9:15-13:00 alle 18:00.
Contattaci ed a tua completa disposizione ci sarà un nostro consulente pronto a fornire tutte le giuste informazioni ed a chiarire ogni tuo dubbio, inoltre potrà fornire la possibilità di farti scoprire altre interessanti occasioni ed opportunità di mercato a seconda delle tue esigenze, senza alcun impegno!
Agenzia Nigro Immobiliare, operativa nel mercato immobiliare di Ladispoli e dintorni dal 1999.
Sappiamo mettere a disposizione dei clienti un bagaglio di affidabilità e concretezza sviluppati in venti anni di attività.
Garantiamo ai clienti che ci affidano i propri immobili in esclusiva la massima pubblicizzazione, a nostra cura, dell'immobile sia sul presente sito che attraverso volantini, cartelli piazzati nei punti strategici della città e, non da ultimo, annunci pubblicitari sui migliori siti a pagamento di annunci immobiliari professionali.
*Le presenti informazioni e planimetrie sono meramente indicative e non costituiscono elementi contrattuali.

LEGGI TUTTO

CONDIVIDI SUI SOCIAL

DATI PRINCIPALI

Riferimento
630576
Contratto
Vendita
Tipologia
Attico
Superficie
86 mq
Locali
3
Camere da letto
2
Cucina
Cucinotto
Bagni
2
Piano
1 °
Totale piani
1

CARATTERISTICHE

Ascensore

COSTI

Prezzo
€ 320.000,00

EFFICIENZA ENERGETICA

Stato
Abitabile
Anno costruzione
1980
Riscaldamento
Autonomo
Climatizzazione
Si
Classe energetica
F
IPE
175,00 kWh/m²a

A+

A

B

C

D

E

175,00 kWh/m²a | Classe energetica F

F

G

MAPPA

ANNUNCI SIMILI

VENDITA 20
€ 195.000
Attico in Vendita a Santa Marinella (Roma)
  • Trilocale
  • 86 mq
  • 2 bagni