VENDESI ATTICO ESCLUSIVO COLOSSEO VENDITA

Piazza del Colosseo - Roma (Roma)
€ 4.500.000
  • Più di 5 locali
  • 580 mq
  • 4 bagni

Attico in Vendita a Roma

Per chi è alla ricerca di eleganza, comfort e unicità, Gala Group propone in esclusiva uno straordinario attico di nuova costruzione, situato nel cuore di Roma, a pochi passi dal Colosseo.
Una proprietà irripetibile, mai abitata, completamente arredata e rifinita con materiali di altissimo pregio, pensata per offrire il massimo del lusso e della vivibilità.
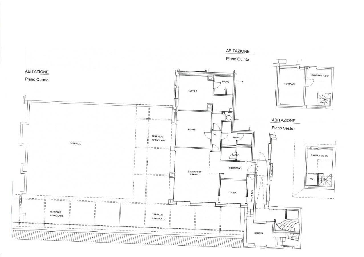
L’immobile si sviluppa su una superficie interna di circa 230 mq, arricchita da oltre 350 mq di splendidi terrazzi panoramici.
La proprietà è composta da: Ampio ingresso di rappresentanza, luminoso salone, cucina moderna e funzionale, due camere padronali con accesso diretto al magnifico terrazzo, tre bagni.
Al piano superiore: due ulteriori camere, di cui una con terrazzo privato e bagno, e l’altra con bagno interno.
L’attico è dotato di ogni comfort moderno: arredamento completo di design, riscaldamento autonomo, sistema di domotica avanzata, tapparelle automatizzate, aria condizionata canalizzata, parquet di alta qualità negli ambienti, bagni rifiniti in pregiato marmo travertino.
Una soluzione esclusiva, ideale per chi desidera vivere in un contesto unico, dove storia, lusso e innovazione si incontrano.
Il prezzo della vendita è di Euro 4.500.000,00
Per maggiori informazioni contattare i nostri uffici ai seguenti numeri: 06.89274537, 339-3350505 oppure inviare una mail a galagroupre@gmail.com dove sarete immediatamente ricontatti dal nostro personale. La Gala Group Real Estate, con Head Quarter in Via Poli è una società Leader che opera nel settore dell’intermediazione immobiliare da diversi anni, specializzata nel settore del commerciale, nelle Vendite e nelle Locazioni di prestigio, cura inoltre Fondi immobiliari per conto di un portfolio clienti selezionato e fidelizzatosi nel tempo, rappresentato dai più noti brand nazionali ed internazionali che operano nel settore dell’abbigliamento, della profumeria, delle calzature e della ristorazione. In un’economia globale, la visione lungimirante e le strategie di business innovative per un settore tradizionale e tradizionalista come l’immobiliare, hanno permesso alla Società di Distinguersi. Collegato al gruppo vi è un team di professionisti altamente specializzati, nello specifico la Gala Group Real Estate mette a disposizione della propria clientela molteplici figure professionali come gli architetti che oltre ad occuparsi di progettazione, esecuzione, direzione lavori, curano anche ogni aspetto tecnico ed amministrativo. Le informazioni, le immagini e le planimetrie presenti nell’ annuncio sono meramente indicative e non costituiscono elementi contrattuali.

LEGGI TUTTO

CONDIVIDI SUI SOCIAL

DATI PRINCIPALI

Riferimento
637349
Contratto
Vendita
Tipologia
Attico
Superficie
580 mq
Locali
Più di 5
Camere da letto
2
Cucina
Abitabile
Bagni
4
Piano
4 °
Totale piani
4

CARATTERISTICHE

Ascensore

COSTI

Prezzo
€ 4.500.000,00

EFFICIENZA ENERGETICA

Stato
Nuovo/In costruzione
Riscaldamento
Autonomo
Climatizzazione
Si
Classe energetica
A
IPE
175,00 kWh/m²a

A+

175,00 kWh/m²a | Classe energetica A

A

B

C

D

E

F

G

MAPPA

ANNUNCI SIMILI

VENDITA 5
Trattativa Riservata
Attico in Vendita a Roma (Roma)
  • Più di 5 locali
  • 321 mq
  • 4 bagni
VENDITA 7
€ 1.550.000
Attico in Vendita a Roma, Zona Esquilino
  • Più di 5 locali
  • 275 mq
  • 3 bagni
VENDITA 19
Trattativa Riservata
Attico in Vendita a Roma (Roma)
  • Più di 5 locali
  • 580 mq
  • 4 bagni
VENDITA 20
Trattativa Riservata
Attico in Vendita a Roma (Roma)
  • Più di 5 locali
  • 250 mq
  • 3 bagni
VENDITA
€ 2.500.000
Attico in Vendita a Roma (Roma)
  • Più di 5 locali
  • 220 mq
  • 3 bagni
VENDITA 20
€ 3.500.000
Attico in Vendita a Roma (Roma)
  • Più di 5 locali
  • 296 mq
  • 4 bagni