Trilocale – Ultimo piano con vista panoramica – Torre Gaia VENDITA

Via Carlo Palombi - Roma, Zona Borghesiana
€ 125.000
  • Trilocale
  • 80 mq
  • 1 bagno

Attico in Vendita a Roma

Trilocale – Ultimo piano con vista panoramica – Torre Gaia – Metro C a piedi
In piccolo comprensorio di sole tre palazzine, proponiamo in vendita, in Via Carlo Palombi nel quartiere Torre Gaia, un luminosissimo trilocale situato al terzo ed ultimo piano di una palazzina in buono stato di manutenzione (senza ascensore).
L’appartamento gode di una splendida vista panoramica aperta, che garantisce luce naturale durante tutta la giornata e ottima privacy.
Il balcone panoramico rappresenta uno spazio ideale per momenti di relax e per godersi il panorama.

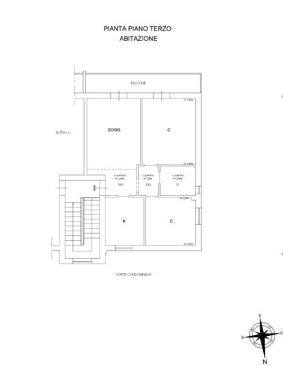
La proprietà è composta da ingresso, soggiorno luminoso dotato di un ampio e comodo soppalco, cucina abitabile, camera matrimoniale, cameretta o studio, bagno finestrato, balcone con affaccio aperto e cantina di pertinenza, soffitti leggermente mansardati
L’immobile è dotato di porta blindata e riscaldamento autonomo, caratteristiche che assicurano comfort abitativo e gestione indipendente dei consumi.

La posizione è particolarmente strategica: l’appartamento si trova a pochi passi dalle fermate della Linea C della Metropolitana di Roma (stazioni Torre Gaia station e Grotte Celoni station), vicino a supermercati, scuole e a tutti i principali servizi del quartiere, con rapidi collegamenti al Grande Raccordo Anulare e al centro di Rome. La zona è residenziale, tranquilla e ben servita.

Grazie alle sue caratteristiche, l’immobile rappresenta una soluzione ideale per giovani coppie, come prima casa o come investimento immobiliare.

Prezzo richiesto: € 125.000.
Spese condominiali: circa € 40 al mese, acqua inclusa.

Per ricevere foto complete, planimetria dell’immobile o fissare una visita, non esitare a contattarci.
Info tel. 06 7028718 - mail info@immobilnetwork.it - sito www.immobilnetwork.it IMMOBILNETWORK, attiva nel mercato immobiliare romano dal 1987, garantisce un servizio altamente professionale e personalizzato per venditori e acquirenti.
Grazie all’adozione di strategie di marketing avanzate, a un approccio consulenziale e alla competenza consolidata del nostro team costantemente aggiornato, offriamo una gestione completa e accurata di ogni fase della compravendita.
La nostra lunga esperienza e la reputazione consolidata ci rendono un interlocutore di fiducia e un punto di riferimento nel settore immobiliare della capitale.

LEGGI TUTTO

CONDIVIDI SUI SOCIAL

DATI PRINCIPALI

Riferimento
640183
Contratto
Vendita
Tipologia
Attico
Superficie
80 mq
Locali
3
Camere da letto
2
Cucina
Abitabile
Bagni
1
Piano
3 °
Totale piani
3

CARATTERISTICHE

Ascensore

COSTI

Prezzo
€ 125.000,00
Spese condominiali
€ 40,00 / mese

EFFICIENZA ENERGETICA

Stato
Abitabile
Anno costruzione
1960
Riscaldamento
Autonomo
Climatizzazione
Si
Classe energetica
G
IPE
175,00 kWh/m²a

A+

A

B

C

D

E

F

175,00 kWh/m²a | Classe energetica G

G

MAPPA

ANNUNCI SIMILI

VENDITA 20
€ 299.000
Attico in Vendita a Roma, Zona Torre Gaia
  • Più di 5 locali
  • 164 mq
  • 2 bagni
VENDITA 10
€ 299.000
Attico in Vendita a Roma, Frazione Tor Vergata
  • Trilocale
  • 104 mq
  • 1 bagno
VENDITA 20
€ 239.000
Attico in Vendita a Roma, Zona Borghesiana
  • Quadrilocale
  • 155 mq
  • 2 bagni