Splendido Attico Re di Roma AFFITTO

Piazza dei Re di Roma - Roma, Zona Re di Roma
€ 3.300 mensili
  • Più di 5 locali
  • 158 mq
  • 3 bagni

Attico in Affitto a Roma

PER INFORMAZIONI E VISITE INVIARE ESCLUSIVAMENTE UN MESSAGGIO CON REFERENZE LAVORATIVE.
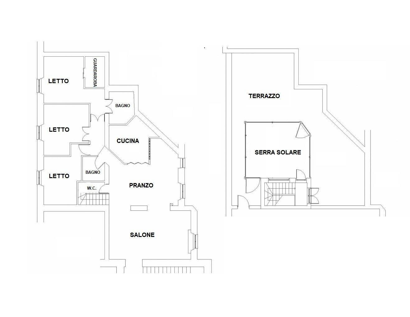
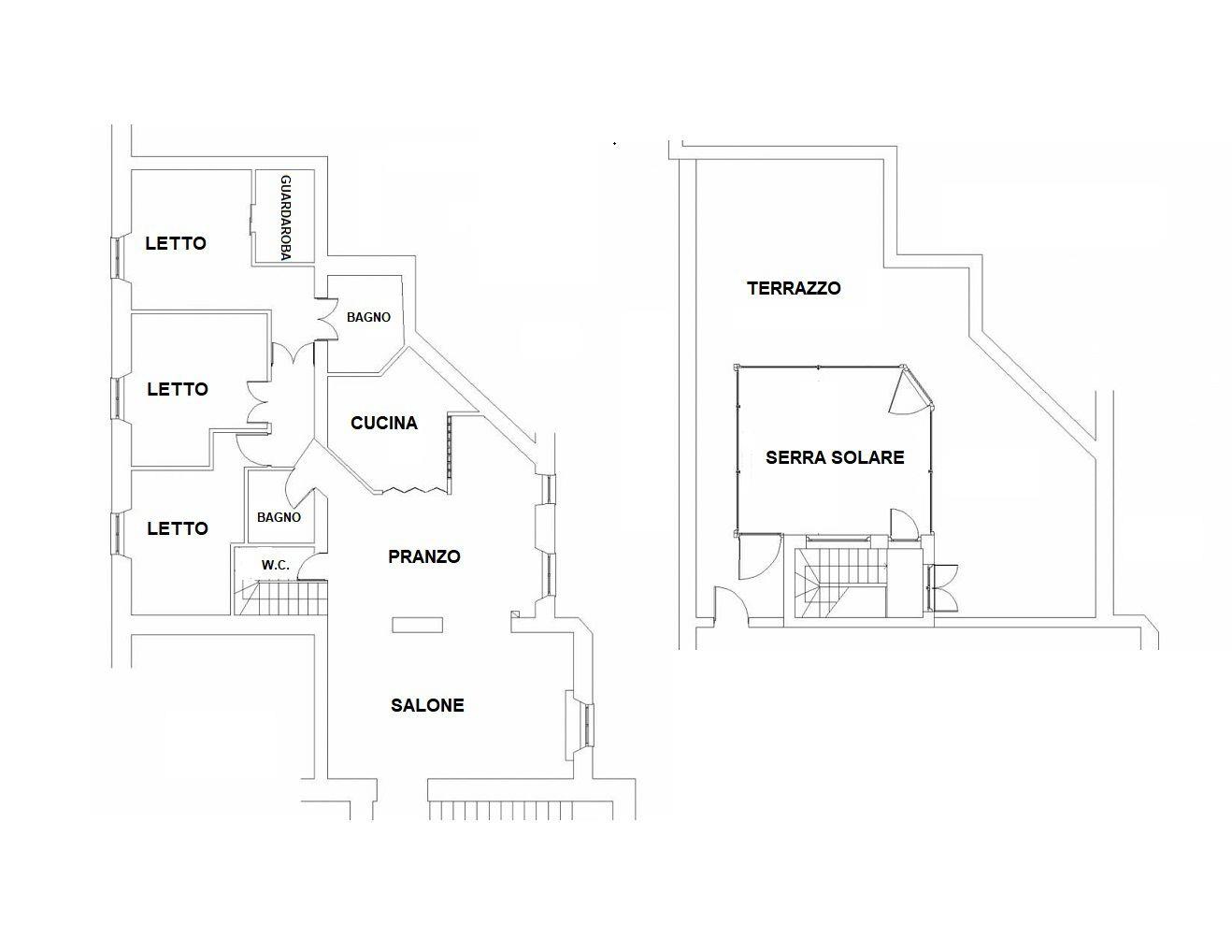
San Giovanni Re di Roma, splendido attico finemente ristrutturato con terrazzo sovrastante dotato di serra solare e cucina all’aperto.
L’appartamento è composto da ingresso, grande salone con zona pranzo, cucina provvista di pannelli a vetro scorrevoli, tre stanze da letto, tre bagni, ripostiglio, ed è provvisto di riscaldamento autonomo, aria condizionata, sistema home cinema con schermo dal soffitto, cablaggio e sistema di allarme, box auto compreso a poca distanza.
L'immobile si affitta vuoto, non arredato, con cucina, esclusivamente a referenziati provvisti di adeguate garanzie reddituali e fideiussione.
Disponibile da agosto 2026.
Non si affitta ad uso casa vacanze e similari.

Available 01/08/2026.
San Giovanni, Re di Roma, splendid penthouse apartment with rooftop terrace with veranda and open air kitchen consisting of entrance, double living room with dining area, furnished kitchen with sliding glass door, 3 bedrooms, 3 bathrooms, storage room. The apartment is equipped with autonomous heating, A/C, home cinema with ceiling screen and alarm system. Garage within walking distance included.
The apartment will be rented out unfurnished with equipped kitchen.
No b&b. No short let. Income references required.
For further information please send a message with job references.

LEGGI TUTTO

CONDIVIDI SUI SOCIAL

DATI PRINCIPALI

Riferimento
632637
Contratto
Affitto
Tipologia
Attico
Superficie
158 mq
Locali
5
Camere da letto
3
Cucina
A vista
Bagni
3
Piano
6 °
Totale piani
7
Box/Posto auto
Singolo

CARATTERISTICHE

Ascensore

COSTI

Canone
Affitto € 3.300,00 al mese
Tipo locazione
4+4

EFFICIENZA ENERGETICA

Stato
Ristrutturato
Anno costruzione
1900
Riscaldamento
Autonomo
Climatizzazione
Si
Classe energetica
G
IPE
175,00 kWh/m²a

A+

A

B

C

D

E

F

175,00 kWh/m²a | Classe energetica G

G

MAPPA

ANNUNCI SIMILI

AFFITTO 7
€ 9.500 mensili
Attico in Affitto a Roma (Roma)
  • Più di 5 locali
  • 310 mq
  • 3 bagni
AFFITTO 7
€ 8.800 mensili
Attico in Affitto a Roma (Roma)
  • Più di 5 locali
  • 301 mq
  • 3 bagni