PALAZZO SQUARCIARELLI - GROTTAFERRATA VENDITA

Via Vecchia di Marino 10 - Grottaferrata (Roma)
€ 375.000
  • Trilocale
  • 92 mq
  • 2 bagni

Attico in Vendita a Grottaferrata

Palazzina signorile di ultima generazione con posti auto di proprietà interni, finiture di pregio e comfort moderni.
Nel pieno centro di Grottaferrata, in posizione strategica e vicina a tutti i servizi, proponiamo in vendita appartamenti di nuova ristrutturazione all'interno di una palazzina elegante e curata nei minimi dettagli.
La struttura è oggetto di un intervento integrale di ristrutturazione con adeguamento sismico, isolamento termico/acustico e impianti tecnologici di ultima generazione, che permettono di raggiungere la Classe Energetica A, sinonimo di efficienza, risparmio energetico e comfort:

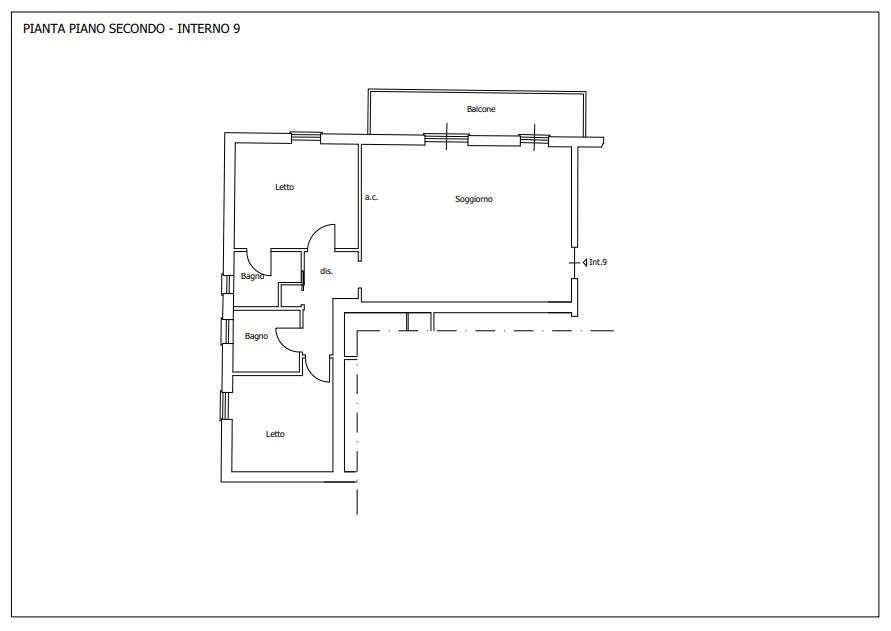
-L'appartamento in oggetto è posto al piano ATTICO ed è un ampio trilocale con tetto in legno travi a vista con altezza circa 5 metri ed è composto da un ampio soggiorno con cucina a vista, la zona notte comprende due camere da letto, di cui una con bagno privato, offrendo il massimo comfort e privacy, un secondo bagno a servizio degli ospiti, un pratico ripostiglio utilizzabile come lavanderia, un balcone panoramico ed un posto auto interno.

Disponibilità di soluzioni abitative di varie tipologie:

-ULTIMA DISPONIBILITA Bilocale posto al piano primo e composto da : soggiorno con angolo cottura, camera da letto e bagno;

-Trilocali composti da: soggiorno, cucina, due camere, un bagno, balcone e terrazzo panoramico;

-Trilocali composti da : ampio soggiorno con cucina a vista, due camere, due bagni, ripostiglio e balcone panoramico.
CONSEGNA PREVISTA 30 APRILE 2026
Caratteristiche principali:
-Impianto di riscaldamento a pavimento con pompa di calore e impianto di climatizzazione autonomo;
-Infissi in PVC doppio vetro, isolamento termico e acustico;
-Pannelli fotovoltaici condominiali;
-Videocitofono e porta blindata;
-Predisposizione impianto di allarme;
-Ascensore moderno al servizio di tutti i piani;
-Posto auto interno riservato incluso nel prezzo;
-Spese condominiali contenute.

-L'Immobilservice ha come missione l'intento di seguire ed accompagnare il cliente fino alla conclusione della trattativa in una delle scelte più importanti della vita in modo completo e professionale. Per curare al meglio tutti i dettagli si avvale di professionisti del settore con l'expertise necessario per arrivare con successo all'obiettivo. Sarete accompagnati nel percorso della vendita o dell'acquisto di un immobile sintonizzandoci sulle esigenze del cliente. Classificazione e certificazione della classe energetica (audit energetico), opportunità di valutazione ed erogazione mutui con istituti bancari convenzionati con le nostre strutture. Particolarmente specializzati nella vendita di immobili zona Castelli Romani.

LEGGI TUTTO

CONDIVIDI SUI SOCIAL

DATI PRINCIPALI

Riferimento
631926
Contratto
Vendita
Tipologia
Attico
Superficie
92 mq
Locali
3
Camere da letto
2
Cucina
A vista
Bagni
2
Piano
2 °
Totale piani
2
Box/Posto auto
Singolo

CARATTERISTICHE

Ascensore

COSTI

Prezzo
€ 375.000,00

EFFICIENZA ENERGETICA

Stato
Nuovo/In costruzione
Anno costruzione
1930
Riscaldamento
Autonomo
Climatizzazione
Si
Classe energetica
A
IPE
175,00 kWh/m²a

A+

175,00 kWh/m²a | Classe energetica A

A

B

C

D

E

F

G

MAPPA

ANNUNCI SIMILI

VENDITA 20
€ 479.000
Attico in Vendita a Grottaferrata (Roma)
  • Trilocale
  • 116 mq
  • 2 bagni
VENDITA 9
€ 560.000
Attico in Vendita a Grottaferrata (Roma)
  • Trilocale
  • 108 mq
  • 2 bagni