L’Attico che ridefinisce il concetto di "Casa" VENDITA

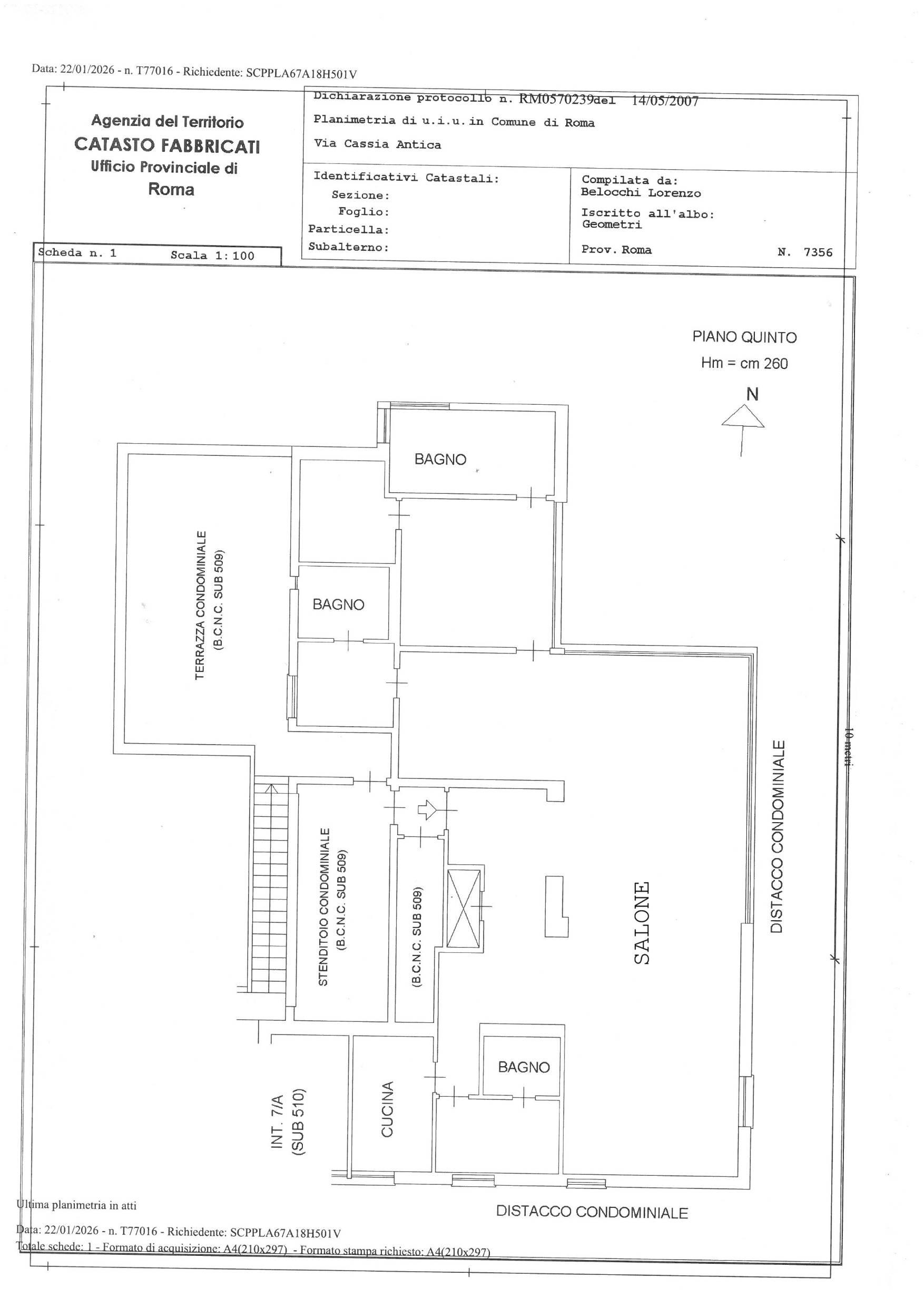
Via Cassia 15 - Roma (Roma)
€ 1.000.000
  • Quadrilocale
  • 147 mq
  • 3 bagni

Attico in Vendita a Roma

Abitare in via Cassia 15 significa scegliere un indirizzo che parla di prestigio, dove la maestosa Villa Rossi sorveglia un condominio d’altri tempi. Qui, la sicurezza è assoluta: un’oasi protetta h24 grazie al servizio di portineria diurna e alla vigilanza notturna dedicata, per una serenità senza compromessi.
Un Ingresso Trionfale nel Cuore della Luce: Dimentica le scale o i pianerottoli comuni. L’ascensore ti accoglie direttamente dentro l’immobile, aprendosi su un universo di calore e design. Sotto i tuoi piedi, il parquet in Doussié Nero stende un tappeto di eleganza naturale che corre lungo tutta la superficie di questa dimora unica.
In questa casa, l'ordine è una forma d'arte. Ogni angolo è stato ottimizzato con armadiature a muro su misura, realizzate da maestri falegnami per offrirti una capienza straordinaria senza sottrarre spazio alla vista.
Un salone doppio monumentale, dove il soffitto diventa cielo grazie alle vetrate motorizzate in alluminio. Aprirle in estate significa trasformare il living in un patio ventilato; chiuderle significa godersi la pioggia o le stelle nel silenzio totale dei doppi infissi.
Un layout perfetto con due ampie camere da letto e una cameretta ideale per ospiti o studio. La camera padronale è un vero rifugio privato, completa di una ricercata cabina armadio.
Una cucina abitabile e funzionale e ben tre servizi, pensati per la massima privacy di ogni membro della famiglia.
Non c'è spazio per le preoccupazioni: gli impianti elettrici e idraulici sono a norma e certificati. Il comfort termico è garantito dal sistema Daikin a pompa di calore, supportato da tende tecniche studiate per riflettere il calore solare nelle giornate più calde.
A completare questa proprietà esclusiva, un posto auto scoperto all'interno del condominio, un lusso indispensabile per chi vuole vivere Roma con la massima libertà.

LEGGI TUTTO

CONDIVIDI SUI SOCIAL

DATI PRINCIPALI

Riferimento
628516
Contratto
Vendita
Tipologia
Attico
Superficie
147 mq
Locali
4
Camere da letto
3
Cucina
Cucinotto
Bagni
3
Piano
5 °
Totale piani
5
Box/Posto auto
Singolo

CARATTERISTICHE

Ascensore

COSTI

Prezzo
€ 1.000.000,00
Spese condominiali
€ 300,00 / mese

EFFICIENZA ENERGETICA

Stato
Ristrutturato
Anno costruzione
1920
Riscaldamento
Autonomo
Climatizzazione
Si
Classe energetica
E
IPE
351,00 kWh/m²a

A+

A

B

C

D

351,00 kWh/m²a | Classe energetica E

E

F

G

MAPPA

ANNUNCI SIMILI

VENDITA 20
€ 2.500.000
Attico in Vendita a Roma (Roma)
  • Quadrilocale
  • 350 mq
  • 4 bagni