Attico Vista Mare VENDITA

via rumenia, 24 - Pomezia (Roma)
€ 155.000
  • Quadrilocale
  • 110 mq
  • 1 bagno

Attico in Vendita a Pomezia

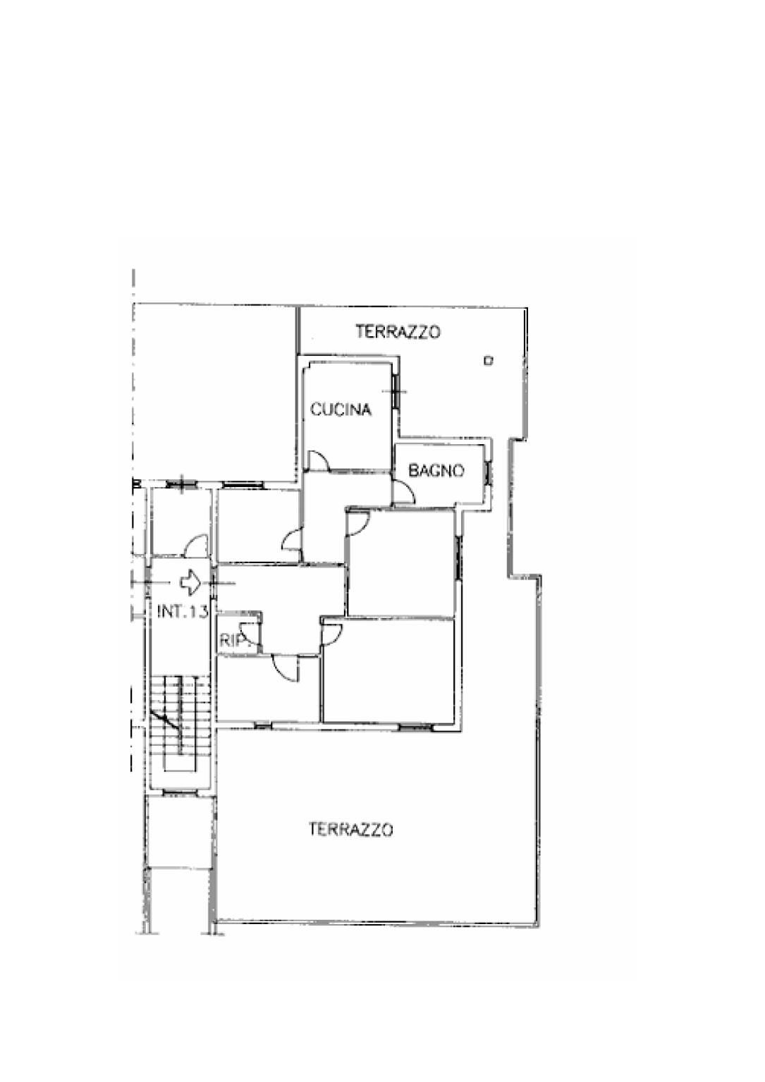
Torvaianica - Via Rumenia - Proponiamo Attico di ampia metratura con terrazzo vista mare. L'immobile è composto da ingresso, salone, cucina abitabile, due camere matrimoniali, studio e ripostiglio. Completano la proprietà un ampio terrazzo perimetrale con vista mare, un comodo box auto e cantina.
Forniamo anche consulenza tecnica e notarile, finalizzata alla risoluzione di tutte le problematiche inerenti la vendita o l’acquisto di immobili. Offriamo la possibilità di una gestione gratuita delle locazioni, in caso di acquisto a fine d’investimento, garantendo i criteri selettivi più attenti nella scelta degli eventuali locatari. Da oltre 20 anni sul territorio, la nostra agenzia è in possesso di quel know-how indispensabile per non rimanere intrappolati nelle paludi burocratiche che spesso rallentano i processi di compravendita, mettendo a rischio l’esito delle trattative stesse.. Inoltre, seguiamo il cliente fino alle fasi finali del rogito notarile, offrendo un costante e professionale contatto continuativo con l’acquirente, pronti ad offrire rapide ed efficaci risposte su ogni punto interrogativo.
Siamo a vostra completa disposizione per visionare gli immobili tutti i giorni, dal lunedì al sabato, previo appuntamento telefonico al nostro recapito 06.91900389 Le Case di Alessia. Le informazioni pubblicitarie non hanno carattere contrattuale. Le planimetrie non sono in scala e la suddivisione degli spazi è a scopo meramente illustrativo.

LEGGI TUTTO

CONDIVIDI SUI SOCIAL

DATI PRINCIPALI

Riferimento
638668
Contratto
Vendita
Tipologia
Attico
Superficie
110 mq
Locali
4
Camere da letto
3
Cucina
Abitabile
Bagni
1
Piano
3 °
Totale piani
3
Box/Posto auto
Singolo

CARATTERISTICHE

Ascensore

COSTI

Prezzo
€ 155.000,00
Spese condominiali
€ 1,00 / mese

EFFICIENZA ENERGETICA

Stato
Ristrutturato
Anno costruzione
1971
Riscaldamento
Autonomo
Classe energetica
G
IPE
175,00 kWh/m²a

A+

A

B

C

D

E

F

175,00 kWh/m²a | Classe energetica G

G

MAPPA

ANNUNCI SIMILI

VENDITA 20
€ 795.000
Attico in Vendita a Roma, Zona Trigoria
  • Più di 5 locali
  • 271 mq
  • 4 bagni