€ 150.000
  • Trilocale
  • 66 mq
  • 1 bagno

Attico in Vendita a Ladispoli

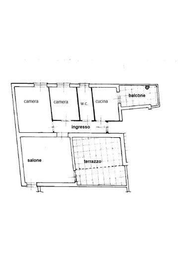
Ladispoli Via Etruria, l'agenzia Retecasa propone a due passi dal Lungomare Regina Elena, appartamento di 60 mq. sito al secondo e ultimo piano di una piccola palazzina.
Al suo interno è composto da, ingresso, soggiorno cucina abitabile, camera matrimoniale, cameretta, bagno, balcone e ampio terrazzo di 15 mq. Parziale vista mare, Stato originale.

CONDIVIDI SUI SOCIAL

DATI PRINCIPALI

Riferimento
635981
Contratto
Vendita
Tipologia
Attico
Superficie
66 mq
Locali
3
Camere da letto
2
Cucina
Abitabile
Bagni
1
Piano
2 °
Totale piani
2

CARATTERISTICHE

Ascensore

COSTI

Prezzo
€ 150.000,00

EFFICIENZA ENERGETICA

Stato
Da ristrutturare
Anno costruzione
1965
Classe energetica
G
IPE
185,00 kWh/m²a

A+

A

B

C

D

E

F

185,00 kWh/m²a | Classe energetica G

G

MAPPA

ANNUNCI SIMILI