€ 430.000
  • Monolocale
  • 88 mq

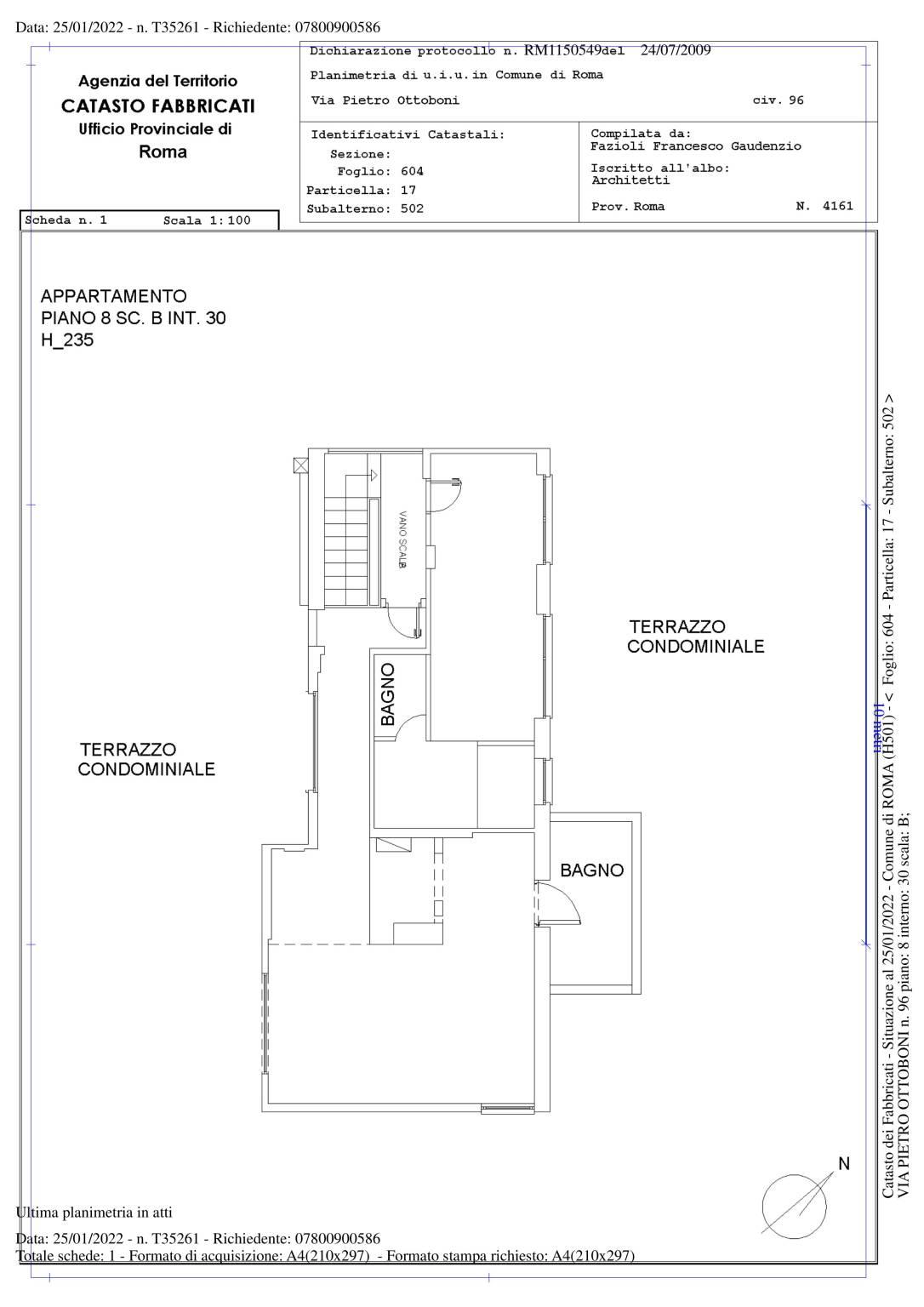
Attico in Vendita a Roma

Vendita attico via ottoboni- zona tiburtina
in palazzo con portiere e ascensore si vende attico situato all'8 piano ( si accede con l'ascensore al 7 piano e attraverso un rampa di scale si accede all'attico). L'immobile ha una doppia entrata, quindi puo' essere facilmente divisibile. Misura circa 90 mq con 3 terrazzi di circa 100 mq ad uso esclusivo , di cui quello principale ha installata una piscina e gode di una bellissima vista aerea sul parco. L'immobile e' composto da: ingresso a galleria, salotto con accesso a 2 terrazzi- bagno con doccia- camera da letto con bagno ensuite e altro terrazzo. L'immobile sta in buone condizioni. Adiacente a metro ( 10 minuti a piedi) e alla zona commerciale. Richiesta: € 430.000, 00 contattare: Olivia Chapperon 335 204947

LEGGI TUTTO

CONDIVIDI SUI SOCIAL

DATI PRINCIPALI

Riferimento
631859
Contratto
Vendita
Tipologia
Attico
Superficie
88 mq
Locali
1
Piano
Più di 7 piani

CARATTERISTICHE

Ascensore

COSTI

Prezzo
€ 430.000,00

EFFICIENZA ENERGETICA

Classe energetica
A
IPE
175,00 kWh/m²a

A+

175,00 kWh/m²a | Classe energetica A

A

B

C

D

E

F

G

MAPPA