Attico e superattico a via Vallombrosa VENDITA

via Vallombrosa - Roma, Zona Cortina d'Ampezzo
€ 1.390.000
  • Più di 5 locali
  • 277 mq
  • 4 bagni

Attico in Vendita a Roma

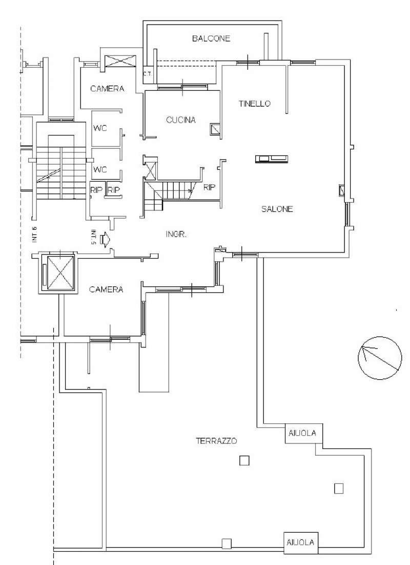
All’interno di un contesto residenziale di assoluta eleganza e riservatezza, in un condominio signorile provvisto di servizio di portineria, attico e superattico di circa 290 mq commerciali, con 170 mq. di terrazzi.
Il piano attico si sviluppa su una superficie di circa 180 mq, ed è composto da un doppio ingresso dotato di una elegante libreria a parete, salone di rappresentanza e sala da pranzo con grandi vetrate che lo rendono molto luminoso e accesso diretto allo splendido terrazzo di circa 150 mq, comodo e funzionale tinello a servizio di una splendida cucina con penisola totalmente attrezzata e terrazzo di 15 mq. Completano il piano uno studio/camera da letto, bagno, camera e bagno di servizio.
Il piano superattico, di circa 110 mq con ingresso autonomo, si compone di quattro camere, di cui una suite padronale, arredata con eleganti armadiature di pregio realizzate su misura e bagno all’interno, doppio terrazzo, seconda camera anch’essa con bagno all’interno e ulteriori due camere servite da un terzo bagno.
La proprietà è stata oggetto di una sapiente e radicale ristrutturazione utilizzando materiali di alto pregio, ed è provvista di riscaldamento autonomo, pavimentazione in parquet a listoni, aria condizionata canalizzata per tutte le camere, e infissi doppio vetrocamera a taglio termico
Completano la proprietà due grandi posti auto all'interno dell'autorimessa condominiale e una comoda ed asciutta cantina posta al piano terra.
L'immobile gode di una particolare luminosità grazie alla tripla esposizione e alle ampie vetrate prospicienti lo splendido terrazzo. La presenza del doppio ingresso rappresenta un'ottima soluzione anche nel caso in cui si volesse dividerlo in due unità immobiliari distinte.
L’immobile rappresenta la soluzione ideale per chi desidera una residenza di prestigio in un tranquillo quartiere altamente residenziale, e in una posizione strategica favorita dalla vicinanza di tutti i principali servizi come scuole pubbliche, private ed internazionali, esercizi commerciali, e prossima alle principali arterie stradali della città.

LEGGI TUTTO

CONDIVIDI SUI SOCIAL

DATI PRINCIPALI

Riferimento
631300
Contratto
Vendita
Tipologia
Attico
Superficie
277 mq
Locali
Più di 5
Camere da letto
5
Cucina
Abitabile
Bagni
4
Piano
5 °
Totale piani
5
Box/Posto auto
Doppio

CARATTERISTICHE

Ascensore

COSTI

Prezzo
€ 1.390.000,00

EFFICIENZA ENERGETICA

Riscaldamento
Centralizzato
Climatizzazione
Si
Classe energetica
D
IPE
175,00 kWh/m²a

A+

A

B

C

175,00 kWh/m²a | Classe energetica D

D

E

F

G

MAPPA

ANNUNCI SIMILI

VENDITA 10
€ 1.250.000
Attico in Vendita a Roma (Roma)
  • Più di 5 locali
  • 419 mq
  • 4 bagni
VENDITA 20
€ 950.000
Attico in Vendita a Roma (Roma)
  • Più di 5 locali
  • 245 mq
  • 3 bagni