ZONA MARCONI VIA GRIMALDI AMPIA METRATURA VENDITA

Via Francesco Grimaldi - Roma, Zona Marconi
Trattativa Riservata
  • Bilocale
  • 84 mq
  • 1 bagno

Appartamento in Vendita a Roma

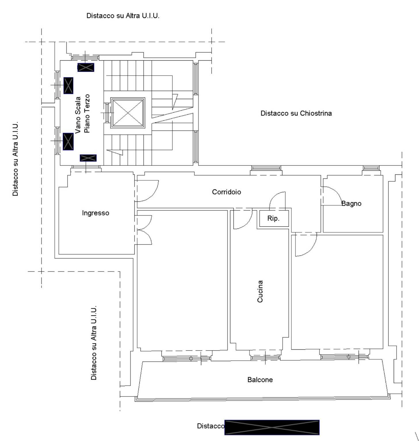
Marconi Via Francesco Grimaldi, adiacente via Oderisi da Gubbio, in zona servita da tutti i servizi commerciali e vicino università, palazzo in ottimo stato, terzo piano, libero subito, ampio ingresso, soggiorno, disimpegno con finestra, cucina abitabile con ripostiglio, camera matrimoniale e ampio bagno ristrutturato, balconata abitabile, possibilita' di creare la seconda cameretta e secondo bagno, l'immobile è da ristrutturare ad eccezione del bagno.

La nostra Agenzia può regolarmente vantare la conclusione di compravendite e locazioni immobiliari, definite sempre con il compiacimento e l’apprezzamento da parte dei proprietari, quanto degli acquirenti o conduttori. La nostra banca dati, ci pone in evidenza moltissime richieste di acquisto e di locazione, ed abbiamo la certezza di poter soddisfare le necessità e le aspettative di quanti debbano acquistare o locare e di coloro che abbiano esigenza o volontà di vendere immobili. Pertanto, qualora fosse nelle vostre intenzioni vendere o locare qualsiasi unità immobiliare, desideriamo informarvi che la nostra Agenzia effettua VALUTAZIONI VERBALI GRATUITE, che in nessun modo sono vincolanti da parte vostra.Non c’è dubbio che metteremo a vostra completa disposizione tutto il nostro impegno, la nostra professionalità e la nostra competenza per accompagnarvi nel “non” sempre facile percorso di una vendita o locazione sicura ed in coerenza con le vostre aspettative.

LEGGI TUTTO

CONDIVIDI SUI SOCIAL

DATI PRINCIPALI

Riferimento
628677
Contratto
Vendita
Tipologia
Appartamento
Superficie
84 mq
Locali
2
Camere da letto
1
Cucina
Abitabile
Bagni
1
Piano
3 °
Totale piani
8

CARATTERISTICHE

Ascensore

COSTI

Prezzo
Trattativa Riservata

EFFICIENZA ENERGETICA

Stato
Da ristrutturare
Anno costruzione
1962
Riscaldamento
Centralizzato
Classe energetica
D
IPE
175,00 kWh/m²a

A+

A

B

C

175,00 kWh/m²a | Classe energetica D

D

E

F

G

MAPPA

ANNUNCI SIMILI

VENDITA 20
€ 419.000
Appartamento in Vendita a Roma, Zona Marconi
  • Più di 5 locali
  • 150 mq
  • 2 bagni
VENDITA 13
€ 310.000
Appartamento in Vendita a Roma, Zona Marconi
  • Quadrilocale
  • 100 mq
  • 1 bagno
VENDITA 20
€ 280.000
Appartamento in Vendita a Roma, Zona Marconi
  • Trilocale
  • 74 mq
  • 1 bagno
VENDITA 20
€ 270.000
Appartamento in Vendita a Roma, Zona Marconi
  • Bilocale
  • 80 mq
  • 1 bagno