Zona Centralissima – Ampio Bilocale VENDITA

Ladispoli (Roma)
€ 139.000
  • Bilocale
  • 58 mq
  • 1 bagno

Appartamento in Vendita a Ladispoli

Sei alla ricerca di un appartamento bilocale?
Un immobile situato a due passi dal centro?
L’Angolo Immobiliare ha la soluzione alle tue esigenze!
Proponiamo in vendita al primo piano di una piccola palazzina situata in zona centrale, un appartamento 2 Locali.
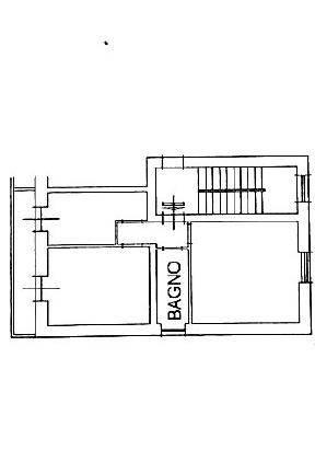
Accediamo all’immobile attraverso la porta blindata e troviamo ad accoglierci l'ingresso, procediamo all’interno dell’immobile e troviamo il luminoso soggiorno e la cucina abitabile con sfogo esterno sul balcone di 10 mq circa; procediamo verso la zona notte dove troviamo la camera da letto matrimoniale ed infine il bagno servito da doccia.
L’Abitazione si presenta in buone condizioni generali, dispone di infissi doppio vetro e riscaldamento autonomo ed inoltre gode di una tripla esposizione.
L’immobile è situato in una palazzina in zona centralissima e prende parte in un quartiere ben servito, sono infatti comodamente raggiungibili a piedi la stazione, il centro, il mare e molteplici zone di interesse come, attività commerciali, fermate autobus, aree verdi, scuole, ecc..

– ZONA CENTRALISSIMA –BUONE CONDIZIONI–RISCALDAMENTO TERMOAUTONOMO – INFISSI DOPPIO VETRO–PICCOLA PALAZZINA– BREVE DISTANZA DA STAZIONE E VIALE ITALIA –CAMERETTA RICAVABILE-

*Le presenti informazioni, foto e planimetrie sono meramente indicative e non costituiscono elementi contrattuali.
***Il seguente annuncio non costituisce vincolo contrattuale***

L’Angolo Immobiliare
06.9946169
Altri recapiti:
334.1638109 – 388.3909581
www.angolo-immobiliare.it

LEGGI TUTTO

CONDIVIDI SUI SOCIAL

DATI PRINCIPALI

Riferimento
634959
Contratto
Vendita
Tipologia
Appartamento
Superficie
58 mq
Locali
2
Camere da letto
1
Cucina
Abitabile
Bagni
1
Totale piani
3

CARATTERISTICHE

Ascensore

COSTI

Prezzo
€ 139.000,00
Spese condominiali
€ 30,00 / mese

EFFICIENZA ENERGETICA

Stato
Abitabile
Anno costruzione
1958
Riscaldamento
Autonomo
Classe energetica
G
IPE
175,00 kWh/m²a

A+

A

B

C

D

E

F

175,00 kWh/m²a | Classe energetica G

G

MAPPA

ANNUNCI SIMILI

VENDITA 17
€ 155.000
Appartamento in Vendita a Ladispoli (Roma)
  • Trilocale
  • 90 mq
  • 1 bagno