Vista mozzafiato nel cuore di un borgo medioevale VENDITA

Via Roma - Civitella San Paolo (Roma)
€ 39.000
  • Monolocale
  • 35 mq
  • 1 bagno

Appartamento in Vendita a Civitella San Paolo

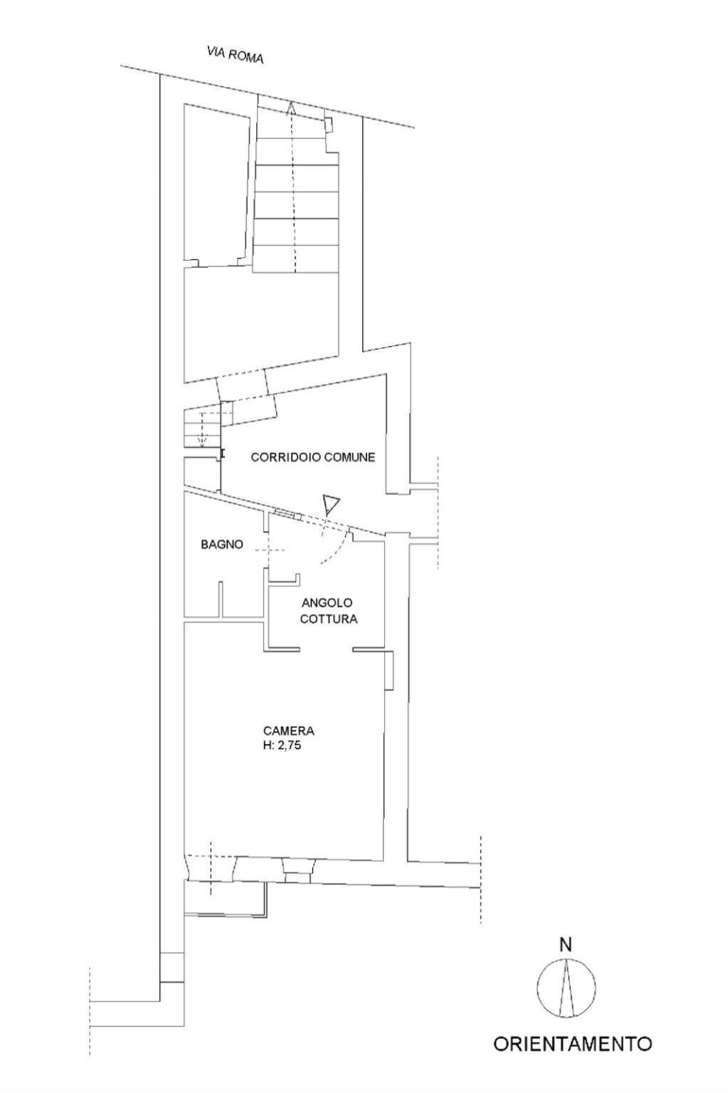
A Civitella San Paolo, un affascinante borgo medievale situato nella valle del Tevere, ti offro un'opportunità imperdibile: un monolocale completamente ristrutturato, mai abitato, che si affaccia su una splendida vallata. Situato proprio nel cuore del borgo, accanto al Palazzo del Comune, questo appartamento al piano terra ti sorprenderà con una vista mozzafiato, paragonabile a quella di un quinto piano.

Il monolocale è ideale per chi cerca uno spazio accogliente e moderno, con dettagli di pregio come il soffitto a travi e un elegante parquet scuro a listelli grandi. È dotato di cucina e bagno ben rifiniti, un balcone che si affaccia sul verde circostante, e un’accogliente area living con camino. Immagina le serate invernali, mentre ti rilassi davanti al fuoco, avvolto dalla calda luce delle fiamme che illuminano la stanza, creando un’atmosfera intima e rilassante.

L’appartamento dispone di riscaldamento autonomo, così potrai gestire a tuo piacimento il clima interno. Inoltre, non ci sono spese condominiali, rendendo questa soluzione ancora più conveniente.

Vivere qui ti permette di immergerti completamente nell'atmosfera storica del borgo, famoso per il suo Castello Abbaziale e la Chiesa di San Lorenzo, nonché per le affascinanti mura medievali che un tempo proteggevano la comunità. La posizione è ideale anche per chi ama la natura, con la Riserva Naturale Regionale Nazzano, Tevere-Farfa nelle vicinanze, perfetta per escursioni all'aperto e attività nella natura.

Se stai cercando un luogo tranquillo, ma ben collegato (Roma dista solo 45 minuti), dove poter vivere o trascorrere piacevoli weekend lontano dal caos della città, questo appartamento rappresenta la scelta ideale. Lasciati incantare dal fascino della storia e dalla bellezza del paesaggio, mentre ti godi la comodità di una casa nuova e pronta ad accoglierti.

LEGGI TUTTO

CONDIVIDI SUI SOCIAL

DATI PRINCIPALI

Riferimento
630636
Contratto
Vendita
Tipologia
Appartamento
Superficie
35 mq
Locali
1
Cucina
Angolo cottura
Bagni
1
Piano
Piano terra
Totale piani
2

CARATTERISTICHE

Ascensore

COSTI

Prezzo
€ 39.000,00

EFFICIENZA ENERGETICA

Stato
Ristrutturato
Classe energetica
F
IPE
175,00 kWh/m²a

A+

A

B

C

D

E

175,00 kWh/m²a | Classe energetica F

F

G

MAPPA

ANNUNCI SIMILI

VENDITA 20
€ 59.000
Appartamento in Vendita a Civitella San Paolo (Roma)
  • Trilocale
  • 97 mq
  • 1 bagno
VENDITA 20
€ 650.000
Appartamento in Vendita a Fiano Romano (Roma)
  • Più di 5 locali
  • 530 mq
  • 4 bagni
VENDITA 14
€ 56.000
Appartamento in Vendita a Fiano Romano (Roma)
  • Trilocale
  • 110 mq
  • 1 bagno
VENDITA 20
€ 35.000
Appartamento in Vendita a Fiano Romano (Roma)
  • Monolocale
  • 5 mq
  • 1 bagno