VIALE BRUNO PELIZZI/P.ZZA GALGANO QUADRILOCALE RISTRUTTURATO VENDITA

Piazza Salvatore Galgano 60 - Roma, Zona Cinecittà
€ 350.000
  • Trilocale
  • 84 mq
  • 2 bagni

Appartamento in Vendita a Roma

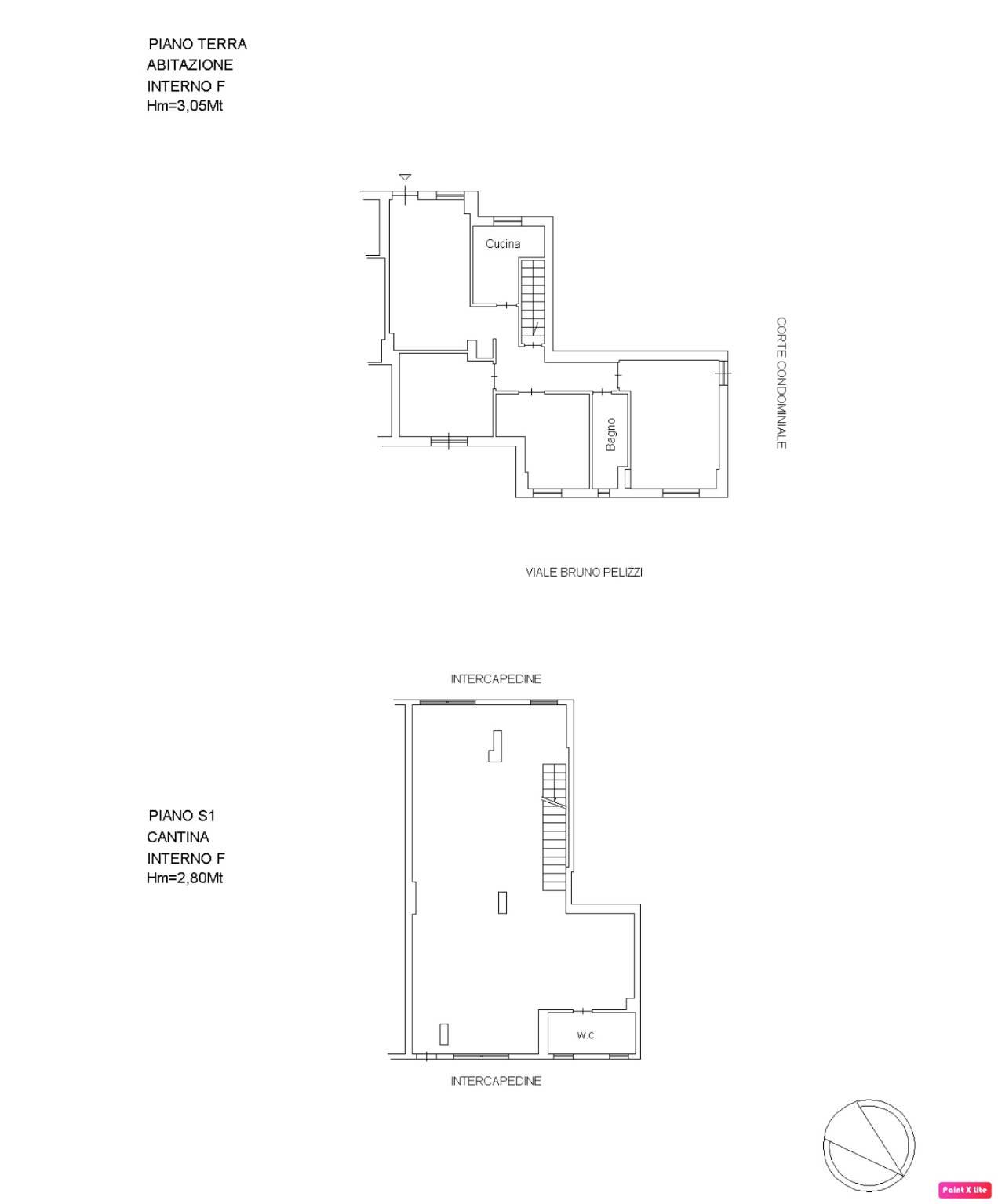
La New G&CO immobiliare propone in vendita un appartamento quadrilocale completamente ristrutturato, in zona CINECITTÁ, l'appartamento è cosí composto al piano terra abbiamo un comodo soggiorno, tre camere da letto, una cucina semi abitabile ed un bagno completo con finestra. Al piano S1 abbiamo un ampia sala hobby open space ed un altro comodo bagno finestrato.

!!!!L' appartamento è collocato al piano terra del condominio Piazza S. Galgano è completamente autonomo dal condominio di cui fa parte in termini di utenze: idrica, elettrica, gas, fibra, antenna televisiva. L'appartamento si sviluppa su due livelli, ossia il piano terra abitabile ed il piano interrato destinato a cantina / sala hobby direttamente collegato con l’appartamento, di cui è pertinenza, per mezzo di una scala interna!!!!

POSSIBILITÀ MUTUO GREEN CON NOTEVOLI AGEVOLAZIONI SUL TASSO DI INTERESSE (PER CONSULENZE ED INFO 06/7186436)

La ristrutturazione oltre a rinnovare completamente gli ambienti dal punto di vista funzionale e visivo ha efficentato notevolmente la classe energetica dell'immobile, di seguito elenchiamo i punti chiave :
o Classe Energetica A2: Le abitazioni sono progettate per garantire bassi consumi energetici e un elevato comfort ambientale,
o Impianto di riscaldamento/raffrescamento: Ogni appartamento dispone di un sistema autonomo di riscaldamento/raffrescamento a fan coil, alimentato da una pompa di calore aria/acqua CLIVET.
o Materiali e isolamento: Le pareti perimetrali esterne sono state realizzate inserendo all’interno del pacchetto murario un pannello isolante di 10 cm, cosi come è stato isolato il solaio di calpestio del piano terra tra abitazione e cantina. Questa soluzione contribuisce significativamente alla riduzione / eliminazione delle dispersioni termiche dell’involucro edilizio nei periodi freddi, garantendo un alto livello di confort termico.
o Produzione di acqua calda sanitaria: Realizzata tramite uno scaldabagno a gas Rinnai da 17L.
o Infissi e aperture: Ampie finestre e portefinestre in PVC, complete di controtelaio termico, grate di
sicurezza e avvolgibili elettrici, permettono di avere ambienti luminosi e ben aerati.

Oltre all'aspetto energetico inoltre evidenziamo quelli che sono i dettagli tecnici e finiture:

o Porta blindata protetta da un sistema “defender antishock” per la serratura in modo da aumentare il
livello di sicurezza in dotazione.
o Videocitofono al piano terra abitabile, mentre nella zona cantina è situato il citofono.
o Sistema di trasmissione televisiva indipendente/autonomo.
o Predisposizione dell’impianto di allarme a centralina nella zona residenziale.
o Lampade di emergenza nei vari livelli.
o Pavimenti in gres porcellanato.
o Rivestimenti in ceramica.
o Bagno zona residenziale completo di mobile arredo/specchio, con doccia attrezzata con soffione a
parete e doccino.
o Grate di sicurezza.
o Infissi in pvc.
o Avvolgibili elettrici.
o Porte interne del piano abitabile a battente / scorrevole lavorate di colore bianco, con maniglie in acciaio satinato.
o Porte interne del piano cantina a battente lisce di colore bianco, con maniglie in acciaio satinato. o Pareti e soffitti rifiniti con una tinta di tonalità bianco puro.
o Il piano terra residenziale è dotato di controsoffitto su tutta la superficie dell’abitazione.

L’edificio si trova in una zona residenziale urbanizzata, raggiungibile attraverso un piccolo parco/giardino attrezzato. I residenti possono beneficiare di un ambiente tranquillo, sicuro e rilassato, con tutti i servizi primari, quali scuole (asilo nido, materne, elementari, licei ecc...), piscina comunale Olimpia e privata S.C. Tuscolano, la parrocchia di S. Maria Domenica Mazzarello, linee bus varie quali 559, 657 e 500, edicola, supermercato Pewex, nonché numerosi esercizi commerciali di vicinato, che rendono il contesto ricco di servizi. L’ampio parcheggio esterno al fabbricato garantisce la possibilità di parcheggiare senza problemi.

Per ogni informazioni per appuntamenti e per qualsiasi chiarimento potete contattarci al numero 06/7186436.
Le informazioni, le immagini e le rappresentazioni planimetriche non costituiscono elementi precontrattuali e contrattuali, per tutte le informazioni vi invitiamo a recarvi presto il nostro ufficio o contattarci ai recapiti presenti.

LEGGI TUTTO

CONDIVIDI SUI SOCIAL

DATI PRINCIPALI

Riferimento
636050
Contratto
Vendita
Tipologia
Appartamento
Superficie
84 mq
Locali
3
Camere da letto
3
Cucina
Abitabile
Bagni
2
Piano
Piano terra
Totale piani
7

CARATTERISTICHE

Ascensore

COSTI

Prezzo
€ 350.000,00

EFFICIENZA ENERGETICA

Stato
Nuovo/In costruzione
Anno costruzione
1970
Riscaldamento
Autonomo
Climatizzazione
Si
Classe energetica
A+
IPE
0,60 kWh/m²a
0,60 kWh/m²a | Classe energetica A+

A+

A

B

C

D

E

F

G

MAPPA

ANNUNCI SIMILI

VENDITA 20
€ 380.000
Appartamento in Vendita a Roma, Zona Cinecittà
  • Quadrilocale
  • 130 mq
  • 2 bagni
VENDITA 20
€ 203.000
Appartamento in Vendita a Roma, Zona Cinecittà
  • Trilocale
  • 95 mq
  • 2 bagni
VENDITA 20
€ 260.000
Appartamento in Vendita a Roma, Zona Cinecittà
  • Trilocale
  • 72 mq
  • 2 bagni
VENDITA 20
€ 190.000
Appartamento in Vendita a Roma, Zona Cinecittà
  • Trilocale
  • 75 mq
  • 1 bagno
VENDITA 20
€ 290.000
Appartamento in Vendita a Roma, Zona Cinecittà
  • Quadrilocale
  • 117 mq
  • 1 bagno