Via Tripolitania – Ampio Trilocale, Metro Libia VENDITA

Via Tripolitania 130 - Roma (Roma)
€ 430.000
  • Trilocale
  • 93 mq
  • 2 bagni

Appartamento in Vendita a Roma

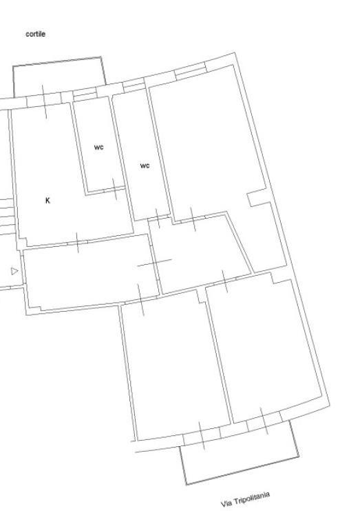
Direzione Casa propone in vendita in Via Tripolitania, nel cuore del quartiere Africano, un appartamento di 93 mq posto al primo piano di una palazzina recentemente ristrutturata. L’immobile è composto da ingresso, ampio disimpegno, tre camere da letto di generosa metratura, di cui una arricchita da una comoda zona cabina armadio/ripostiglio, cucina abitabile, due bagni e due balconi, uno con affaccio interno e uno su strada. L’appartamento si presenta da ristrutturare, offrendo così la possibilità di personalizzare gli ambienti e valorizzarne appieno le potenzialità. Attualmente locato fino a fine settembre, verrà venduto libero, rappresentando una soluzione ideale sia per famiglie sia per chi desidera investire in una zona ad alta richiesta locativa. La posizione è strategica, a pochi passi dalla fermata metro Metro Libia e servita da attività commerciali di ogni genere, scuole e tutti i principali servizi.

Per maggiori informazioni o per fissare un appuntamento è possibile contattare Valerio al 3928583731.

LEGGI TUTTO

CONDIVIDI SUI SOCIAL

DATI PRINCIPALI

Riferimento
627704
Contratto
Vendita
Tipologia
Appartamento
Superficie
93 mq
Locali
3
Camere da letto
3
Cucina
Abitabile
Bagni
2
Piano
1 °
Totale piani
9

CARATTERISTICHE

Ascensore

COSTI

Prezzo
€ 430.000,00
Spese condominiali
€ 65,00 / mese

EFFICIENZA ENERGETICA

Stato
Da ristrutturare
Anno costruzione
1970
Riscaldamento
Centralizzato
Classe energetica
E
IPE
351,00 kWh/m²a

A+

A

B

C

D

351,00 kWh/m²a | Classe energetica E

E

F

G

MAPPA

ANNUNCI SIMILI

VENDITA 12
€ 153.750
Appartamento in Vendita a Roma (Roma)
  • Quadrilocale
  • 71 mq
  • 1 bagno
VENDITA 19
€ 450.000
Appartamento in Vendita a Roma (Roma)
  • Trilocale
  • 100 mq
  • 2 bagni
VENDITA 20
€ 549.000
Appartamento in Vendita a Roma (Roma)
  • Trilocale
  • 95 mq
  • 2 bagni
VENDITA 20
€ 495.000
Appartamento in Vendita a Roma (Roma)
  • Quadrilocale
  • 111 mq
  • 2 bagni
VENDITA 20
€ 499.000
Appartamento in Vendita a Roma (Roma)
  • Trilocale
  • 100 mq
  • 1 bagno
VENDITA 17
€ 285.000
Appartamento in Vendita a Roma (Roma)
  • Trilocale
  • 95 mq
  • 1 bagno
VENDITA 20
€ 695.000
Appartamento in Vendita a Roma (Roma)
  • Quadrilocale
  • 154 mq
  • 2 bagni
VENDITA 4
€ 445.000
Appartamento in Vendita a Roma (Roma)
  • Trilocale
  • 92 mq
  • 1 bagno