Via Raffaele Cappelli trilocale ristrutturato luminoso VENDITA

Via Flaminia 785 - Roma, Zona Fleming
€ 635.000
  • Trilocale
  • 98 mq
  • 1 bagno

Appartamento in Vendita a Roma

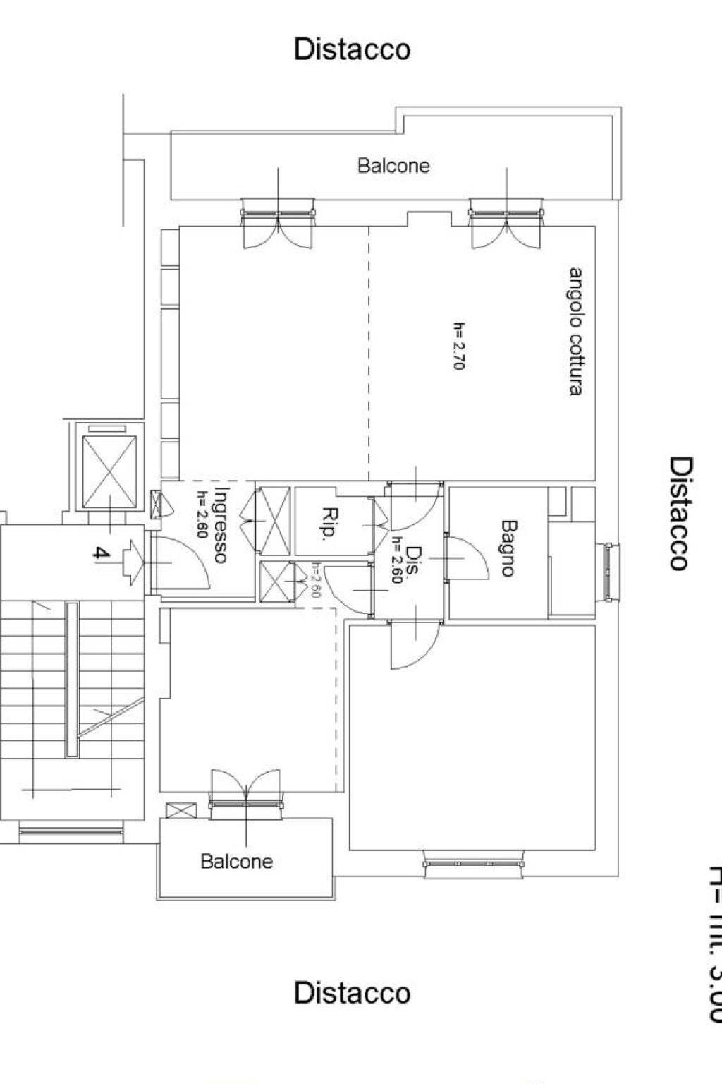
Geim Group vi propone questo splendido trilocale di recente ristrutturazione posto al secondo piano all'interno di una palazzina facente parte di un condominio con ingresso sia da Via Flaminia che da Via Raffaele Cappelli.
L'immobile internamente presenta degli ambienti ampi e confortevoli sfruttati al massimo delle loro potenzialità, la composizione interna attuale prevede un ingresso con un soggiorno doppio con cucina su misura a vista, due camere matrimoniali di cui una molto grande, bagno con doccia walk-in, ripostiglio, balcone adiacente al salone, cantina e posto macchina condominiale.
Le rifiniture interne sono di grande pregio vista la scelta nella ristrutturazione di materiali di primissima qualità, come pavimentazione troviamo un parquet a toghe larghe, infissi con doppi vetri e rivestimnti in PVC, termo arredi, aria condizionata caldo/freddo e armadi a muro in tutta casa.
Per info e visite 0687652705 o www.geimgroup.com

LEGGI TUTTO

CONDIVIDI SUI SOCIAL

DATI PRINCIPALI

Riferimento
637134
Contratto
Vendita
Tipologia
Appartamento
Superficie
98 mq
Locali
3
Camere da letto
2
Cucina
A vista
Bagni
1
Piano
2 °
Totale piani
5
Box/Posto auto
Singolo

CARATTERISTICHE

Ascensore

COSTI

Prezzo
€ 635.000,00
Spese condominiali
€ 100,00 / mese

EFFICIENZA ENERGETICA

Stato
Ristrutturato
Anno costruzione
1970
Riscaldamento
Centralizzato
Climatizzazione
Si
Classe energetica
D
IPE
175,00 kWh/m²a

A+

A

B

C

175,00 kWh/m²a | Classe energetica D

D

E

F

G

MAPPA

ANNUNCI SIMILI

VENDITA 19
€ 730.000
Appartamento in Vendita a Roma, Zona Fleming
  • Più di 5 locali
  • 188 mq
  • 2 bagni
VENDITA
€ 425.000
Appartamento in Vendita a Roma, Zona Fleming
  • Più di 5 locali
  • 146 mq
  • 2 bagni
VENDITA 20
€ 390.000
Appartamento in Vendita a Roma, Zona Fleming
  • Trilocale
  • 109 mq
  • 1 bagno