€ 1.090.000
  • Più di 5 locali
  • 155 mq
  • 2 bagni

Appartamento in Vendita a Roma

Roma – Piazza Bologna | Attico di Prestigio con Terrazzo

Nel cuore del quartiere Piazza Bologna, in Via Pigorini, proponiamo in vendita un esclusivo attico posto al quinto piano, caratterizzato da ambienti eleganti, finiture di qualità e una splendida terrazza vivibile.

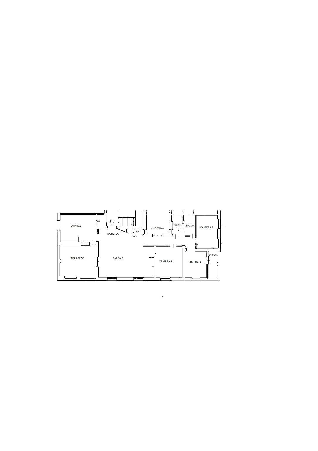
L’appartamento si apre su un ampio ingresso che conduce al soggiorno doppio, luminoso e accogliente, impreziosito da due finestre e una porta finestra con accesso diretto alla terrazza di circa 20 mq, esposta a Sud-Est, ideale per momenti di relax all’aperto o per ricevere ospiti.

La cucina è ampia e abitabile; attualmente è presente una cucina di design ALNO con isola centrale, che potrà eventualmente rimanere nell’immobile previo accordo economico.
L’ambiente è rifinito con pavimento in gres porcellanato 60x60 effetto peperino, rivestimenti in listelli coordinati e controsoffitti laccati spatolati con faretti a incasso Guzzini, che valorizzano l’illuminazione e l’estetica dello spazio.

La zona notte, ben separata dalla zona giorno, è composta da tre camere da letto e due bagni moderni: uno con doccia a pavimento, l’altro con vasca.
Entrambi sono rifiniti con sanitari e rubinetteria di qualità, lavabi in Krion e specchi retroilluminati.
Gli ambienti principali – salone, camere e corridoi – sono impreziositi da parquet in listoni di faggio evaporato prefinito, posato su tappetino fonoassorbente per garantire comfort e isolamento.
La terrazza, pavimentata in cotto, presenta copertine in travertino e ringhiera in acciaio laccato bianco ed è valorizzata da copertura con travi bianche UNO PIÙ, tende da esterno color ecrù e faretti incassati Guzzini, creando uno spazio esterno raffinato e perfettamente fruibile.
L’immobile è dotato di:
finestre con grate di sicurezza in ferro laccato bianco,
climatizzazione negli ambienti sistema domotico per gestione luci e serrande,
impianto di allarme avanzato con barre anti-intrusione e telecamere controllabili da remoto

Completa la proprietà una comoda cantina di pertinenza.
"Quanto riportato nel presente annuncio è puramente indicativo e non costituisce vincolo contrattuale".

Universo Immobiliare Roma
Consulenza completa per compravendite e locazioni residenziali
Property Finder – Valutazioni immobiliari gratuite – Assistenza tecnico-legale

☎ Tel. 06 62274880

LEGGI TUTTO

CONDIVIDI SUI SOCIAL

DATI PRINCIPALI

Riferimento
637815
Contratto
Vendita
Tipologia
Appartamento
Superficie
155 mq
Locali
5
Camere da letto
3
Cucina
Abitabile
Bagni
2
Piano
5 °
Totale piani
6

CARATTERISTICHE

Ascensore

COSTI

Prezzo
€ 1.090.000,00
Spese condominiali
€ 145,00 / mese

EFFICIENZA ENERGETICA

Stato
Ristrutturato
Anno costruzione
1946
Riscaldamento
Autonomo
Climatizzazione
Si
Classe energetica
E
IPE
74,83 kWh/m²a

A+

A

B

C

D

74,83 kWh/m²a | Classe energetica E

E

F

G

MAPPA

ANNUNCI SIMILI

VENDITA 20
€ 819.000
Appartamento in Vendita a Roma, Zona Bologna
  • Più di 5 locali
  • 200 mq
  • 2 bagni
VENDITA 20
€ 810.000
Appartamento in Vendita a Roma, Zona Bologna
  • Più di 5 locali
  • 190 mq
  • 2 bagni
VENDITA 20
€ 1.100.000
Appartamento in Vendita a Roma, Zona Bologna
  • Più di 5 locali
  • 176 mq
VENDITA 20
Trattativa Riservata
Appartamento in Vendita a Roma, Zona Bologna
  • Più di 5 locali
  • 260 mq
  • 2 bagni
VENDITA 20
€ 810.000
Appartamento in Vendita a Roma, Zona Bologna
  • Più di 5 locali
  • 172 mq
  • 2 bagni
VENDITA 20
€ 679.000
Appartamento in Vendita a Roma, Zona Bologna
  • Più di 5 locali
  • 160 mq
  • 3 bagni
VENDITA 17
€ 870.000
Appartamento in Vendita a Roma, Zona Bologna
  • Più di 5 locali
  • 165 mq
  • 2 bagni